立即预约
免费定制整装家居
一站置家 全程无忧 一省到底
设计说明:
设计师整体设计理念:本案以现代简约风格出发,注重空间的布局与使用功能的完美结合,发挥结构构成本身的形式美,造型简洁,搭配上舒适自然的家居布置,棕色的细节点缀让空间更加高级大气,营造出一种轻松自然的氛围。
设计说明:
设计师整体设计理念:本案以新中式风格为主,新中式风格是融合传统和现代元素的设计风格,将中国传统文化与生活相结合,以简洁,自然,舒适为设计理念。同时也注重细节处理,让每个空间充满温馨感。
设计说明:
本案以现代简约风格出发,注重空间的布局与使用功能的完美结合,发挥结构构成本身的形式美,造型简洁,搭配上舒适自然的家居布置,棕色的细节点缀让空间更加高级大气,营造出一种轻松自然的氛围。
设计说明:
设计师整体设计理念:本案以现代简约风格出发,注重空间的布局与使用功能的完美结合,发挥结构构成本身的形式美,造型简洁,搭配上舒适自然的家居布置,棕色的细节点缀让空间更加高级大气,营造出一种轻松自然的氛围。
设计说明:
设计师整体设计理念:本设计方案整体以现代极简为主,凸出每个空间的功能性以及实用性,要二者兼顾,所有无论空间利用还是美观上,设计师都做到精益求精。
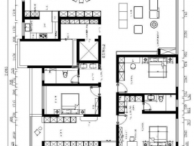
设计说明:
设计理念:本案建筑面积240平米,结合了家里只有常驻人口3人的情况下,就没过多把外界因素纳入考虑的范围,在改户型上面也是一样,同样取舍很重要。明白是卫生间或者是衣帽间,哪个功能区域对你来说更为重要。将原始空间墙体全部打通再重组。生活空间以四大主轴贯穿,分别为客厅餐厅卧室及多功能空间。成为了LKD一体的感觉,整体力求动线流畅及视觉上开阔 。
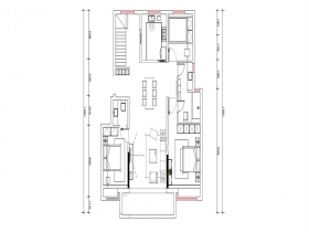
设计说明:
设计师整体设计理念:本案以轻奢的设计手法,它不仅仅是一种装饰风格,更是一种生活态度。
现代轻奢的家具和装饰品注重细节和品质,以简洁而精致的设计为人们创造温馨舒适的居住空间。
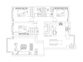
设计说明:
设计师整体设计理念:本案以现代轻奢风格为主,以极致简约风格为基础,通过精致的软装元素凸显质感,彰显高品质的生活方式,从而打造一个简约有质感的家。