立即预约
免费定制整装家居
一站置家 全程无忧 一省到底
设计说明:
设计理念:开放式的打通给人以通透之感,避免视觉给人带来压迫空间,可缓解业主工作一天的疲惫。没有夸张,不显浮华,通过干干净净的设计手法,将业主的工作空间巧妙地融入到生活空间中。
设计说明:
设计说明:
设计师整体设计理念:本案以现代奶油风格出发,整个空间以明亮空间色调,使用暖白、米色、奶油色等淡淡的暖白色调来呈现舒适、温柔感。
设计说明:
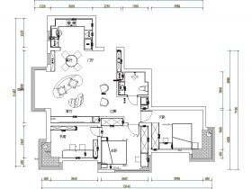
房子为客户自住、改善性住房,业主追求干净、传统、古朴的生活环境,同时对格局有很大期望,所以,本案已实用及合理性做布局,定义为新中式风格。
设计说明:
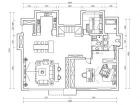
设计师整体设计理念: 家里常住一家两口,希望各个空间都能有较高的舒适性;在收纳功能上要求空间大,且能做到分门别类;周末和节假日的时候,家里需要接待家人和朋友,需要一个比较大的公共活动空间。
设计说明:
本案以北欧为主设计,大气沉稳温馨是设计的主线,这种搭配令客户舒,是不错的选择。
设计说明:
本案装修风格为现代轻奢风格
设计说明:
此套别墅设计方案为现代轻奢风格,主体设计是以现代装饰与软装搭配为主。