立即预约
免费定制整装家居
一站置家 全程无忧 一省到底
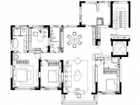
设计说明:
本设计采用软装配合,简单的线条,简单的组合,再加入简单的元素;发挥结构构成本身的形式美,造型简洁,运用合理的构成工艺,构成一个舒适简单的空间。
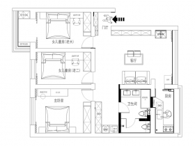
设计说明:
现代鉴于其着重点就在于简,即外形简洁,室内空间朴素、大方,但其功能性强。从细节上来说,即物品的摆放要整洁,装饰的物品要少,在颜色和布局上来说,颜色的种类不要太多,布局要大方,格调要简洁、素雅。
设计说明:
本案以现代元素为主,采用理石质感的石材,搭配暖灰色木质定制类家具,配以亚麻质感的软装饰品,打造一种现代时尚简洁的居住空间
设计说明:
北欧风格装修以简约为主,整体给人一种自然宁静,实用的艺术气息。
设计说明:
本次家装设计遵循现代简约与功能性相融合的理念,强调以简洁的设计手法打造高品质的生活空间。
设计说明:
本次家居设计以现代极简风格为主调,秉持“少即是多”的原则,通过简洁流畅的线条、纯粹的色彩搭配以及精致的材质运用,营造出时尚大气且舒适宜居的空间氛围。注重空间的合理规划与功能整合,满足居住者多样化的生活需求,同时强调自然光线与室内环境的融合,打造一个既能让人放松身心,又能彰显个性品味的居住空间。
设计说明:
本设计采用软装配合,简单的线条,简单的组合,再加入简单的元素;发挥结构构成本身的形式美,造型简洁,运用合理的构成工艺,构成一个舒适简单的空间。
设计说明:
好的设计 不会墨守成规 以人为本 充分让业主体验到好设计所带来的美好生活体验