立即预约
免费定制整装家居
一站置家 全程无忧 一省到底
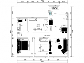
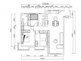
当前位置: 首页 > 装修案例效果图 > 轻奢,91㎡ - 120㎡,户型图
设计说明:
设计师整体设计理念:本案采用现代简约风格,利用简单线条的多元化打造空间,利用色彩的对比和整体相近色系来传达业主对生活品质的期许和追求。
设计说明:
“轻奢”,是一种优雅的生活态度,更是设计展现的一种高度,它饱含奢华的气质内涵,抛弃奢华的外在表现,并使用轻度的体现方式,在优雅上稍加金属修饰,便形成了自然而极致的家具风格。
设计说明:
本案为法式轻奢风格,浪漫,优雅,打造独具一格的高尚格调。
设计说明:
本案采用现代轻奢设计,线条清晰,整体格局开阔,色彩搭配,多使用灰白色为主色蓝色进行装饰,体现出现代风格的特点,具有时尚感。
设计说明:
艺术是生活的升华,设计是艺术的呈现。业主是一家三口,选择现代轻奢风格,比较流行的风格,追求时尚与潮流,注重空间布局和功能性。
设计说明:
本案是现代轻奢风格,采用简约明朗的线条,与当下流行的金属元素相结合,空间感提升到最大化,简约而不简单的设计,通过色彩的碰撞元素,让整个空间奢华而不失稳重。
设计说明:
本案整体采用暖色系为主,高端、大气、上档次。一家三口居住,但是主要还是男主人住,女主人在外地工作,孩子上大学。
设计说明:
本案采用丰富的色彩打造一种温馨的感觉,暖黄色和白色让空间更加温暖,更有结婚之后家的感觉,地面采用暖灰色既采用了当前流行的颜色,也让空间没有因为灰色的加入而缺失温馨的感觉。