立即预约 立即预约
免费定制整装家居

免费定制整装家居

一站置家 全程无忧 一省到底
hide.png

当前位置: 首页 > 装修案例效果图 > 金地锦城

金地锦城 113平 现代简约风格效果图

收藏
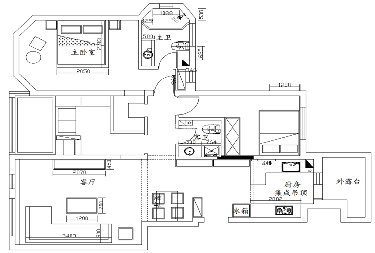
案例风格 现代简约 案例户型 三居 案例面积 113平米
楼盘名称 金地锦城 设计师 王禹厶 案例类型 改善性住宅

设计理念:本案例定位为现代风格,为了整体空间设计,家具主要采用深色调为主,用浅色调进行点缀,并在空间上考虑到户型的情况和业主想法,重点在时尚与科技感方面下了很大的功夫。

  • 案例详情

金地锦城-113平-现代风格-客厅2.jpg 金地锦城-113平-现代风格-客厅1.jpg 金地锦城-113平-现代风格-客厅.jpg 金地锦城-113平-现代风格-客厅3.jpg

客厅我们采用灰色系的地砖,电视背景利用简单的线条勾勒并且采取虚光方式体现设计的质感与不同。整体墙面颜色以中性色为主,高档而不失温馨,棚顶做的边棚,这样背景墙面与天棚交相辉映,从简至繁。

金地锦城-113平-现代风格-餐厅.jpg

餐厅空间不是很大,所以采取简单线条式的吊灯来体现线的优美,深木色的餐椅与餐桌的木色相呼应,体现生活的质感与品质。

金地锦城-113平-现代风格-客卧2.jpg 金地锦城-113平-现代风格-客卧.jpg 金地锦城-113平-现代风格-客卧1.jpg 金地锦城-113平-现代风格-主卧.jpg 金地锦城-113平-现代风格-主卧1.jpg

主卧营造出了时尚和科技感,床头背景墙用简约的线条和虚光灯带搭配出时尚感,使用大幅画作线条体现出它的时尚与不同。

金地锦城-113平-现代风格-卫生间.jpg 金地锦城-113平-现代风格-卫生间1.jpg

主卫生间内部结构比较大,但是有异形,所以玉屏采取不规则的六边形,既对称又不一样,在不规则中寻找规则,洗漱柜采取了发光镜箱,让在此洗漱的人心情愉悦。客卫内部结构比较普通,我们利用瓷砖颜色来把这个卫生间视觉空间扩大整体一体式的洗漱柜和洗衣机的连接整体化了整个空间。

金地锦城-113平-现代风格-厨房2.jpg 金地锦城-113平-现代风格-厨房1.jpg

厨房的面积也不是很大,因此厨房的设计除了效果以外就是储物空间了,但凡有能做柜子的地方,在保证效果的前提下,设计师都为房主做上了储物柜。

金地锦城-113平-现代风格-书房1.jpg 金地锦城-113平-现代风格-书房.jpg 金地锦城-113平-现代风格-书房2.jpg 金地锦城-113平-现代风格-衣帽间.jpg 金地锦城-113平-现代风格-玄关.jpg 金地锦城-113平-现代风格-平面图.jpg

案例设计师

王禹厶

设计师:王禹厶

从业时间:10年

设计理念:坚持原创,坚持一切美好

预约设计师

算算你家装修多少钱

报名即享丰厚赠品,享半价装修

免费报价
咨询热线:400-656-9909
20190221103704574636.jpg

精品设计案例

20180612134930523248.jpg 服务号二维码.jpg