立即预约 立即预约
免费定制整装家居

免费定制整装家居

一站置家 全程无忧 一省到底
hide.png

当前位置: 首页 > 装修案例效果图 > 信达万科城

信达万科城 130平 北欧风格效果图

收藏
案例风格 北欧 案例户型 二居 案例面积 130平米
楼盘名称 信达万科城 设计师 林凤设计师 案例类型 婚房

设计理念:本案以北欧风格设计为主,北欧风格的室内装修设计,简洁,功能性强,擅长用色块和线条来区分空间区域。通过色彩营造出温馨舒适的氛围。

客厅
第1张
第2张
餐厅
第1张
第2张
卧室
第1张
卫生间
第1张
第2张
厨房
第1张
书房
第1张
门厅
第1张
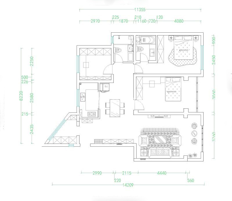
户型图
第1张
  • 案例详情

信达万科城-130平-北欧风格-客厅1.jpg 信达万科城-130平-北欧风格-客厅2.jpg

客厅不仅连接家人沟通的场所,也是连接内外和客主沟通的主要场所,利用频率较高。主色调为浅灰色,电视背景墙只是做了简单设计,在平整的背景墙上装饰了白色线条,使其空间显得不太死板。

信达万科城-130平-北欧风格-餐厅1.jpg 信达万科城-130平-北欧风格-餐厅2.jpg

餐厅设计要与家庭整体风格相呼应,包括颜色、灯光等。

信达万科城-130平-北欧风格-卧室.jpg

卧室主色调以浅灰为主,简约风格中通常线条简单,白色与木色相结合的床头柜搭配木质地板,造型简单,内外通透。

信达万科城-130平-北欧风格-卫生间2.jpg 信达万科城-130平-北欧风格-卫生间1.jpg

卫生间墙面运用白、蓝色块拼接手法,显得空间简单大方。地面用淡色长方型瓷砖,显空间宽阔,不拥挤。

信达万科城-130平-北欧风格-厨房.jpg

主要以白色为主,浅灰色橱柜,白色墙砖为主。由于厨房空间较小,为了使厨房不杂乱,我们加了不少橱柜与吊柜,便于储物。

信达万科城-130平-北欧风格-书房.jpg 信达万科城-130平-北欧风格-门厅.jpg 信达万科城-130平-北欧风格-平面图.jpg

案例设计师

林凤设计师

设计师:林凤设计师

从业时间:8年

设计理念:设计界的一股清流,设计走心最重要。

预约设计师

算算你家装修多少钱

报名即享丰厚赠品,享半价装修

免费报价
咨询热线:400-656-9909
20190221103704574636.jpg

精品设计案例

20180612134930523248.jpg 服务号二维码.jpg