立即预约 立即预约
免费定制整装家居

免费定制整装家居

一站置家 全程无忧 一省到底
hide.png

当前位置: 首页 > 装修案例效果图 > 格林喜鹊花园

格林喜鹊花园 44平 现代简约风格效果图

收藏
案例风格 现代简约 案例户型 二居 案例面积 44平米
楼盘名称 格林喜鹊花园 设计师 林凤设计师 案例类型 婚房

设计理念:本案以现代为主的设计手法,中性时尚,温馨,丰富但不复杂,这种搭配令空间充满恒久的亲和力!完全的体现出了小空间大智慧的设计手法。

客厅
第1张
第2张
第3张
卧室
第1张
第2张
卫生间
第1张
厨房
第1张
第2张
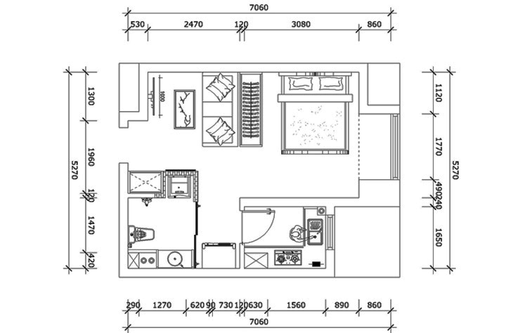
户型图
第1张
  • 案例详情

格林喜鹊花园-44平-现代风格-客厅1.jpg 格林喜鹊花园-44平-现代风格-客厅.jpg 格林喜鹊花园-44平-现代风格-客厅2.jpg

客厅算是一个起居室,一室一厅的房型没有放置电视,这也造就了其自在、随意的不羁生活方式,没有太多造作的修饰与约束,客厅的地板上墙体现了现代人追求时尚的心态,打破整个空间的寂静让人眼前为之一亮。

格林喜鹊花园-44平-现代风格-卧室.jpg 格林喜鹊花园-44平-现代风格-卧室1.jpg 格林喜鹊花园-44平-现代风格-卫生间.jpg

因为卫生间属于无窗户户型,对于采光和通风都都有一定的影响,所以本案在洗衣机墙面做了玻璃砖的设计,会给卫生间带来一定的采光效果。

格林喜鹊花园-44平-现代风格-厨房.jpg 格林喜鹊花园-44平-现代风格-厨房1.jpg

因为橱柜选择的是白色,所以设计厨房墙面的主题颜色以深色为主,这样才能体现开放式厨房的通透与颜色搭配,开放式厨房尽最大可能的融入到了生活当中。

格林喜鹊花园-44平-现代风格-平面图.jpg

案例设计师

林凤设计师

设计师:林凤设计师

从业时间:9年

设计理念:想客户之所想,急客户之所急,永远吧客户的利益放在自己的利益之上。

预约设计师

算算你家装修多少钱

报名即享丰厚赠品,享半价装修

免费报价
咨询热线:400-656-9909
20190221103704574636.jpg

精品设计案例

20180612134930523248.jpg 服务号二维码.jpg