立即预约 立即预约
免费定制整装家居

免费定制整装家居

一站置家 全程无忧 一省到底
hide.png

当前位置: 首页 > 装修案例效果图 > 慧缘馨村

慧缘馨村 90平 现代简约风格效果图

收藏
案例风格 现代简约 案例户型 二居 案例面积 90平米
楼盘名称 慧缘馨村 设计师 林凤设计师 案例类型 婚房

设计理念:全心全意做设计,踏踏实实做装修。特色是将设计的元素、色彩、照明、原材料简化到最少的程度,但对色彩、材料的质感要求很高。因此,简约的空间设计通常非常含蓄,往往能达到以少胜多、以简胜繁的效果。

客厅
第1张
第2张
第3张
第4张
卧室
第1张
卫生间
第1张
厨房
第1张
门厅
第1张
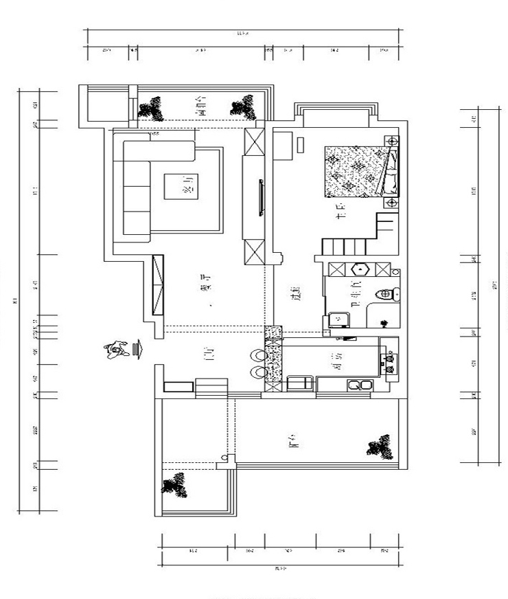
户型图
第1张
  • 案例详情

慧缘馨村-90平-现代风格-客厅1.jpg 慧缘馨村-90平-现代风格-客厅2.jpg 慧缘馨村-90平-现代风格-背景墙.jpg 慧缘馨村-90平-现代风格-沙发背景墙.jpg

客厅背景墙富有很强的收纳功能。使得收纳空间大大增多,高低错落的格子柜,有体现了设计美感、

慧缘馨村-90平-现代风格-卧室1.jpg

卧室储物空间也很多,达到业主的使用想法,用柜子做背景墙使得整体更为协调

慧缘馨村-90平-现代风格-卫生间1.jpg

卫生间黑白色的搭配。让整体显得干净大气。坐便的后边用了更为深色的砖样做了整体搭配

慧缘馨村-90平-现代风格-厨房.jpg

3.厨房的设计,简约大方一些,在厨房的打理方面着重考虑。厨房的黑砖白柜,搭配起来让空间感十足

慧缘馨村-90平-现代风格-门厅.jpg 慧缘馨村-90平-现代风格-平面图.jpg

案例设计师

林凤设计师

设计师:林凤设计师

从业时间:8年

设计理念:先客户之忧而忧,后客户之乐而乐

预约设计师

算算你家装修多少钱

报名即享丰厚赠品,享半价装修

免费报价
咨询热线:400-656-9909
20190221103704574636.jpg

精品设计案例

20180612134930523248.jpg 服务号二维码.jpg