立即预约 立即预约
免费定制整装家居

免费定制整装家居

一站置家 全程无忧 一省到底
hide.png

当前位置: 首页 > 装修案例效果图 > 富力尚悦居

富力尚悦居 98平 欧式风格效果图

收藏
案例风格 欧式 案例户型 三居 案例面积 98平米
楼盘名称 富力尚悦居 设计师 林凤装饰全案设计师 案例类型 婚房

设计理念:本案是现代简约欧式风格,采用欧式经典石膏线,壁纸,护墙板等材质,棚面运用石膏板吊棚做出区域划分,让整个空间的照明更柔和,棚面的点光源和灯带让空间的氛围光更突出。

客厅
第1张
第2张
餐厅
第1张
卧室
第1张
第2张
卫生间
第1张
厨房
第1张
儿童房
第1张
过廊
第1张
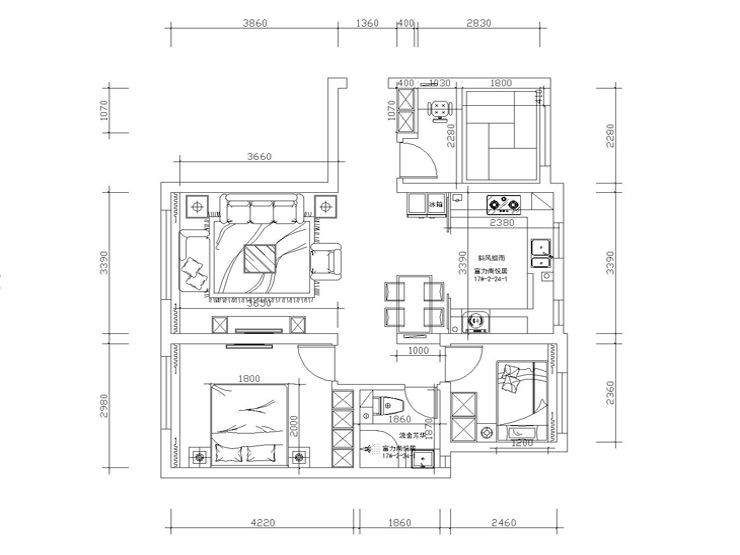
户型图
第1张
  • 案例详情

富力尚悦居-92平-现代风格-客厅.jpg 富力尚悦居-92平-现代风格-客厅1.jpg

电视背景采用当下流行护墙板设计造型,两侧壁纸,中间采用艺术画式的硬包,客厅采用回型式设计吊棚四角做弧形是处理,这样从视觉上感觉客厅更大气,并且沙发背景采用米白的皮质材质再搭配壁纸,和地毯还有挂花的颜色相呼应。是空间犹如画境一般美丽。。

富力尚悦居-92平-现代风格-餐厅.jpg

餐厅背景采用镂空花格的设计方案,既起到美观性也起到了对卫生间门的遮挡,餐桌的造型与金属的材质和吊灯相呼应,镂空花格框体内部的纹理线条,也和客厅装饰花瓶线条相呼应。

富力尚悦居-92平-现代风格-榻榻米.jpg 富力尚悦居-92平-现代风格-卧室.jpg

主卧室采用深色地板,床头背景采用象牙白墙板的设计高贵大气,内嵌的软包造型出与线条,床品的颜色也和窗帘配饰相呼应。棚面采用边棚和欧式石膏线相结合,并采用筒灯和灯带增加氛围光。

富力尚悦居-92平-现代风格-主卫.jpg

卫生间采用理石纹理的瓷砖,整体以暖色调为主,地面采用理石小块砖铺设而体现层次感,墙面瓷砖留缝处理来体现空间感。

富力尚悦居-92平-现代风格-厨房.jpg 富力尚悦居-92平-现代风格-儿童房.jpg 富力尚悦居-92平-现代风格-过廊.jpg 富力尚悦居-92平-现代风格-平面图.jpg

案例设计师

林凤装饰全案设计师

设计师:林凤装饰全案设计师

从业时间:8年

设计理念:在设计中体会生活的真谛。在生活中提炼设计的精髓。

预约设计师

算算你家装修多少钱

报名即享丰厚赠品,享半价装修

免费报价
咨询热线:400-656-9909
20190221103704574636.jpg

精品设计案例

20180612134930523248.jpg 服务号二维码.jpg