立即预约 立即预约
免费定制整装家居

免费定制整装家居

一站置家 全程无忧 一省到底
hide.png

当前位置: 首页 > 装修案例效果图 > 中粮隆玺

中粮隆玺 150平 新中式风格效果图

收藏
案例风格 新中式 案例户型 三居 案例面积 150平米
楼盘名称 中粮隆玺 设计师 高阳 案例类型 改善性住宅

设计理念:中国传统的室内设计融合了庄重与优雅双重气质。现代的中式风格更多的利用了后现代的手法,把传统结构形式通过重新设计组合以另一种民族特色的标志符号出现。

客厅
第1张
第2张
第3张
餐厅
第1张
第2张
第3张
卧室
第1张
卫生间
第1张
厨房
第1张
门厅
第1张
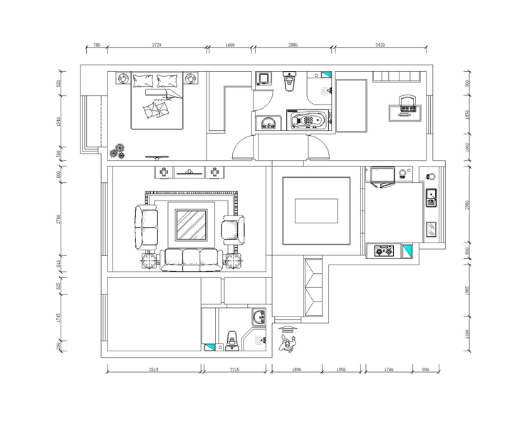
户型图
第1张
  • 案例详情

中粮隆玺-150平-新中式风格-客厅3.jpg 中粮隆玺-150平-新中式风格-客厅1.jpg 中粮隆玺-150平-新中式风格-客厅2.jpg

胡桃色的屏风原木色的沙发桌椅加上背景墙的壁画总体布局对称均衡,端正稳健,充分体现出中国传统美学精神格调高雅造型朴素优美色彩浓厚而成熟。

中粮隆玺-150平-新中式风格-餐厅1.jpg 中粮隆玺-150平-新中式风格-餐厅2.jpg 中粮隆玺-150平-新中式风格-餐厅3.jpg

在餐厅与厨房相连,以达到增加餐厅的情调,原木色的餐桌简单明亮。传统中透着现代,现代中揉着古典。

中粮隆玺-150平-新中式风格-卧室.jpg

以胡桃木色为主体现着中式的古朴,简单端庄舒缓的意境始终是东方人特有的情怀。

中粮隆玺-150平-新中式风格-卫生间.jpg

中国风并非完全意义上的复古明清,而是通过中式风格的特征表达对清雅含蓄端庄风华的东方式精神界的追求。卫生间采用灰色的墙砖配上灰色的柜体并没有显着冷而更加感受到了含蓄端庄。

中粮隆玺-150平-新中式风格-厨房.jpg

厨房为我们保留了较大的活动空间,银色的小把手让橱柜整体多礼一份精致的味道,这样的厨房不拥挤,夫妻二人也可一起体验做美食的乐趣。

中粮隆玺-150平-新中式风格-玄关1.jpg

胡桃木色的玄关柜,下面可以摆放鞋子,上面挂衣服,给玄关处增加情调的同时带来方便的体验。

中粮隆玺-150平-新中式风格-户型图.jpg

案例设计师

高阳

设计师:高阳

从业时间:11年

设计理念:有限空间、无限设计。

预约设计师

算算你家装修多少钱

报名即享丰厚赠品,享半价装修

免费报价
咨询热线:400-656-9909
20190221103704574636.jpg

精品设计案例

20180612134930523248.jpg 服务号二维码.jpg