立即预约 立即预约
免费定制整装家居

免费定制整装家居

一站置家 全程无忧 一省到底
hide.png

当前位置: 首页 > 装修案例效果图 > 宏发英树公馆

宏发英树公馆 83平 现代简约风格效果图

收藏
案例风格 现代简约 案例户型 二居 案例面积 83平米
楼盘名称 宏发英树公馆 设计师 林凤设计师 案例类型 婚房

设计理念:本案是现代风格,整体设计效果,时尚,简单。整个效果又表达了业主对追求时尚的执着。

客厅
第1张
第2张
第3张
餐厅
第1张
第2张
卧室
第1张
卫生间
第1张
厨房
第1张
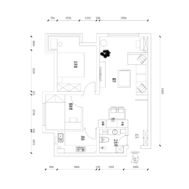
户型图
第1张
  • 案例详情

宏发英树公馆-83平-现代风格-客厅1.jpg 宏发英树公馆-83平-现代风格-客厅2.jpg 宏发英树公馆-83平-现代风格--客厅3.jpg

整体空间的设计以软装配饰为主,硬装造型为辅。墙面大面积白墙搭配电视墙暖色竖条壁纸呈现一种静雅的感觉。同时曲线的造型棚,及软装配饰也软化了空间的棱角,丰富了空间的色彩。电视背景墙用了一整面竖条木色的壁纸,与白色墙面对比强烈。这种对比的强烈感衬托出空间的素雅与干净,而壁纸的纹理也衬托出整体造型的艺术感。

宏发英树公馆-83平-现代风格-餐厅1.jpg 宏发英树公馆-83平-现代风格-餐厅2.jpg

餐厅位置由原本的餐桌改成了卡座,主要考虑到冰箱跟餐桌有一点冲突,为了解决这种难看又占位置的冰箱,最终想到卡座就能解决所有的问题。卡座餐厅不仅美观又能让空间储物的利用率最高,旁边的白色冰箱跟白色卡座还有厨房白色的门,三个连为一体,弱化了冰箱在餐厅位置的突兀,又解决了冰箱离厨房远的问题。

宏发英树公馆-83平-现代风格-主卧室.jpg

主卧室作为主人房,整个房间的设计比较男性化,墙面及窗帘都是用的暗蓝色, 深咖色的布艺床,都遵循整套方案的色彩搭配。

宏发英树公馆-83平-现代风格-卫生间.jpg

卫生间空间小,又是暗卫,考虑到卫生间的灯光都是以白光这种冷光为主,所以卫生间选用的是暖色系瓷砖,这种冷暖的对比,中和了业主对色彩及色调的要求。

宏发英树公馆-83平-现代风格-厨房.jpg

业主对厨房的要求是简单干净,橱柜用的是吸朔材质的门板,搭配墙面纯白色的墙砖,黑白拼接的地砖,整体干净,纯白跟黑色的撞色拼接有给整个纯白色的空间增添的色彩。

宏发英树公馆-83平-现代风格-户型图.jpg

案例设计师

林凤设计师

设计师:林凤设计师

从业时间:8年

设计理念:艺术是生活的升华,设计是艺术的呈现。

预约设计师

算算你家装修多少钱

报名即享丰厚赠品,享半价装修

免费报价
咨询热线:400-656-9909
20190221103704574636.jpg

精品设计案例

20180612134930523248.jpg 服务号二维码.jpg