立即预约 立即预约
免费定制整装家居

免费定制整装家居

一站置家 全程无忧 一省到底
hide.png

当前位置: 首页 > 装修案例效果图 > 顶盛国际

顶盛国际 115平 美式风格效果图

收藏
案例风格 美式 案例户型 二居 案例面积 115平米
楼盘名称 顶盛国际 设计师 林凤设计师 案例类型 婚房

设计理念:本作品采用美式风格,美式风格家居就如同美国独立精神一般,讲究的是如何通过生活经历去累积自己对艺术的启发及对品味的喜好,从中摸索出独一无二的美学空间。家居自由随意、简洁怀旧、实用舒适;暗棕、土黄为主的自然色彩;欧洲皇室家具平民化、古典家具简单化;家具宽大、实用舒适;地面拼花与顶面吊顶装饰相呼应,同时采用砂岩,墙布,护墙板装饰使整个空间更具有美感,让家庭成为释放压力和解放心灵的净土。

客厅
第1张
第2张
第3张
第4张
第5张
餐厅
第1张
卧室
第1张
第2张
卫生间
第1张
厨房
第1张
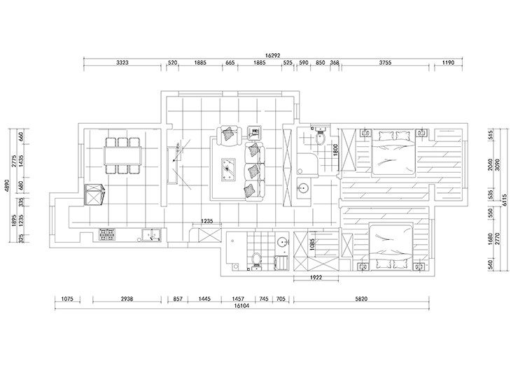
户型图
第1张
  • 案例详情

顶盛国际-115平米-美式风格-客厅.jpg 顶盛国际-115平米-美式风格-客厅2.jpg 顶盛国际-115平米-美式风格-客厅1.jpg 顶盛国际-115平米-美式风格-客厅4.jpg 顶盛国际-115平米-美式风格-客厅3.jpg

客厅房主改了好几个方案,快要吐血了,但还是坚持着,想用理石又觉得太贵。我说放壁纸,他又觉得太lOW,方案真的改了不下十次。为我的耐心点个赞,最后定稿,壁纸和理石结合了,心情好~加个彩蛋,实景自己找哈

顶盛国际-115平米-美式风格-餐厅1.jpg

中其实餐厅我感觉业主多加的酒柜显得空间小了,要不然就挺敞亮的。样板间里把餐厅放在客厅里,老挤了、特别不好。我要是业主我都嫌憋屈。

顶盛国际-115平米-美式风格-卧室2.jpg 顶盛国际-115平米-美式风格-卧室1.jpg

欧式就很简单清新了。我发现我的客户卧室都是喜欢简单化。可能是因为我被影响的吧,卧室有个卧进去的位置是特意设计在衣帽间的保险柜。也是够酷的。

顶盛国际-115平米-美式风格-卫生间.jpg 顶盛国际-115平米-美式风格-厨房1.jpg 顶盛国际-115平米-美式风格-平面布置图.jpg

案例设计师

林凤设计师

设计师:林凤设计师

从业时间:8年

设计理念:先客户之忧而忧,后客户之乐而乐

预约设计师

算算你家装修多少钱

报名即享丰厚赠品,享半价装修

免费报价
咨询热线:400-656-9909
20190221103704574636.jpg

精品设计案例

20180612134930523248.jpg 服务号二维码.jpg