立即预约 立即预约
免费定制整装家居

免费定制整装家居

一站置家 全程无忧 一省到底
hide.png

当前位置: 首页 > 装修案例效果图 > 华润紫云府

华润紫云府 130平 港式风格效果图

收藏
案例风格 港式 案例户型 三居 案例面积 130平米
楼盘名称 华润紫云府 设计师 林凤装饰全案设计师 案例类型 改善性住宅

设计理念:本案的风格是设计师为客户打造的色彩搭配完美,风格与大众都不相同的港式风格。软包与硬包的相互配合,相互调整,相互搭配。再运用大量的木质品,天然大理石。为整个空间增添了许多大气,温馨和贵族气息的感觉。

客厅
第1张
第2张
第3张
第4张
餐厅
第1张
第2张
第3张
卧室
第1张
卫生间
第1张
第2张
书房
第1张
儿童房
第1张
衣帽间
第1张
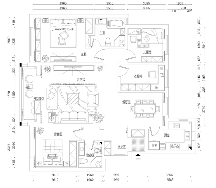
户型图
第1张
  • 案例详情

华润紫云府-130平-港式风格-客厅1.jpg 华润紫云府-130平-港式风格-客厅3.jpg 华润紫云府-130平-港式风格-客厅2.jpg 华润紫云府-130平-港式风格-客厅4.jpg

本案的客厅是采用浅咖色的地砖和白色的地砖作为铺贴,再加上黑色的穿边,让整个空间看着十分的漂亮。沙发背景墙采用护墙板作为主体,配合白色钢条的穿边,与中间部分不规则的造型图案,让沙发背景墙十分的金贵。电视背景墙采用进口纯天然浅咖色纹理大理石作为主体,中间部分镂空,可以放进去电视机,让空间平面更加的增强。石膏板边棚让客厅空间感更加的有层次。

华润紫云府-130平-港式风格-餐厅3.jpg 华润紫云府-130平-港式风格-餐厅1.jpg 华润紫云府-130平-港式风格-餐厅2.jpg

本案的餐厅浅咖色和白色的地砖作为铺贴,再运用黑色的穿边,餐厅地面显得非常漂亮,餐厅背景墙采用木质垭口收边,中间采用浅灰色的纯天然进口大理石,在采用金色钢条收边。两侧采用金色的钢条做造型,形成对称。让餐厅背景墙拥有贵族气息。纯天然大理石的桌面,搭配白色的椅子,显得十分的美好

华润紫云府-130平-港式风格-卧室.jpg

本案的卧室地面采用木质地板,给人感觉更加的安稳。床头背景墙采用米色布艺软包装饰,感觉十分的柔软。深木色和白色烤漆互相搭配出来的床头柜显得非常贵重。石膏板直线边棚做了棚面的装饰造型。窗边做了假飘窗,可以为房主做出一个休闲空间。

华润紫云府-130平-港式风格-主卫.jpg 华润紫云府-130平-港式风格-次卫.jpg

本案的卫生间是采用300x600的米黄色瓷砖整体铺贴,并且采用了地砖上墙的手法,让整个卫生间更加的整齐。并且采用双腰线的做法,让空间感更加有层次。洁白的浴缸,钻石型的浴屏全部透露着金贵气息。而且钻石型浴屏也可以做到干湿分离的实用性。

华润紫云府-130平-港式风格-书房.jpg 华润紫云府-130平-港式风格-次卧室1.jpg 华润紫云府-130平-港式风格-衣帽间.jpg 华润紫云府-130平-港式风格-平面图.jpg

案例设计师

林凤装饰全案设计师

设计师:林凤装饰全案设计师

从业时间:13年

设计理念:设计:是一种追求完美的生活态度,是一种追求品味的生活

预约设计师

算算你家装修多少钱

报名即享丰厚赠品,享半价装修

免费报价
咨询热线:400-656-9909
20190221103704574636.jpg

精品设计案例

20180612134930523248.jpg 服务号二维码.jpg