立即预约 立即预约
免费定制整装家居

免费定制整装家居

一站置家 全程无忧 一省到底
hide.png

当前位置: 首页 > 装修案例效果图 > 旭辉.东樾城

旭辉.东樾城 97平 北欧风格效果图

收藏
案例风格 北欧 案例户型 二居 案例面积 97平米
楼盘名称 旭辉.东樾城 设计师 林凤设计师 案例类型 婚房

设计理念:两个年轻人,房子是用作婚房设计主题围绕着简约 新颖.色彩.来设计

客厅
第1张
第2张
第3张
第4张
第5张
餐厅
第1张
第2张
卧室
第1张
厨房
第1张
门厅
第1张
过廊
第1张
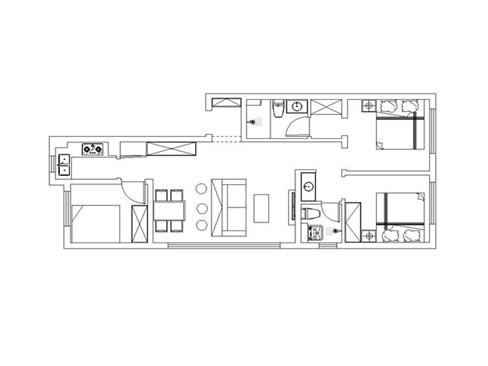
户型图
第1张
  • 案例详情

旭辉.东樾城-97平-北欧风格-客厅1.jpg 旭辉.东樾城-97平-北欧风格-客厅.jpg 旭辉.东樾城-97平-北欧风格-客厅2.jpg 旭辉.东樾城-97平-北欧风格-客厅3.jpg 旭辉.东樾城-97平-北欧风格-客厅4.jpg

客厅地面采用深灰色纹理抛釉地砖, 吊棚为简单的边棚设计棚内采用石膏线粘贴进行装饰,电视背景墙是直接简单的粉刷深灰色乳胶漆来加以个性化装饰 墙上简单的做了隔板.

旭辉.东樾城-97平-北欧风格-餐厅2.jpg 旭辉.东樾城-97平-北欧风格-餐厅.jpg

餐厅空间很理想,摆放位置很符合设计要求

旭辉.东樾城-97平-北欧风格-卧室.jpg

卧室空间在卧室床头背景简单的刷深灰色乳胶漆,做了简单的边棚设计

旭辉.东樾城-97平-北欧风格-厨房.jpg 旭辉.东樾城-97平-北欧风格-玄关.jpg 旭辉.东樾城-97平-北欧风格-过廊.jpg 旭辉.东樾城-97平-北欧风格-户型图.jpg

案例设计师

林凤设计师

设计师:林凤设计师

从业时间:3年

设计理念:设计是一种感受、一种心态、一种舒适的、开心的生活方式。

预约设计师

算算你家装修多少钱

报名即享丰厚赠品,享半价装修

免费报价
咨询热线:400-656-9909
20190221103704574636.jpg

精品设计案例

20180612134930523248.jpg 服务号二维码.jpg