立即预约 立即预约
免费定制整装家居

免费定制整装家居

一站置家 全程无忧 一省到底
hide.png

当前位置: 首页 > 装修案例效果图 > 万锦.紫园

万锦.紫园 60平 现代简约风格效果图

收藏
案例风格 现代简约 案例户型 二居 案例面积 60平米
楼盘名称 万锦.紫园 设计师 林凤设计师 案例类型 婚房

设计理念:业主对装修设计很懂,和业主敲定好方案后,所有设计都围绕着采光,通透来设计

客厅
第1张
第2张
第3张
第4张
餐厅
第1张
第2张
卧室
第1张
厨房
第1张
门厅
第1张
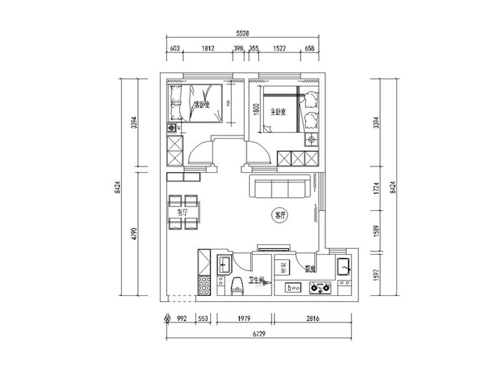
户型图
第1张
  • 案例详情

万锦紫园-60平-- 现代简约-客厅2.jpg 万锦紫园-60平-- 现代简约-客厅.jpg 万锦紫园-60平-- 现代简约-客厅1.jpg 万锦紫园-60平-- 现代简约-客厅3.jpg

户型为2室1厅户型,客厅地面采用浅咖纹理抛釉仿理石地砖, 没有做吊棚, 客厅采用石膏线叠贴来进行装饰电视背景墙是直接简单的铺贴壁纸来加以个性化装饰

万锦紫园-60平-- 现代简约-餐厅1.jpg 万锦紫园-60平-- 现代简约-餐厅.jpg

餐厅空间通过整体户型的大刀阔斧的优化很理想,摆放位置很符合设计要求

万锦紫园-60平-- 现代简约-卧室.jpg

卧室空间每个卧室都做了一个窗户,这样的设计很完美的解决了采光与通透的问题.

万锦紫园-60平-- 现代简约-厨房.jpg 万锦紫园-60平-- 现代简约-玄关.jpg 万锦紫园-60平-- 现代简约-户型图.jpg

案例设计师

林凤设计师

设计师:林凤设计师

从业时间:3年

设计理念:设计是一种感受、一种心态、一种舒适的、开心的生活方式。

预约设计师

算算你家装修多少钱

报名即享丰厚赠品,享半价装修

免费报价
咨询热线:400-656-9909
20190221103704574636.jpg

精品设计案例

20180612134930523248.jpg 服务号二维码.jpg