立即预约 立即预约
免费定制整装家居

免费定制整装家居

一站置家 全程无忧 一省到底
hide.png

当前位置: 首页 > 装修案例效果图 > 御景新世界

御景新世界 147平 美式风格效果图

收藏
案例风格 美式 案例户型 复式 案例面积 147平米
楼盘名称 御景新世界 设计师 林凤装饰设计师 案例类型 改善性住宅

设计理念:本案以简美风格为主,美式风格以空间的实用性与艺术性的高度统一,但同时也不失怀旧,浪漫情怀。

客厅
第1张
第2张
第3张
餐厅
第1张
卧室
第1张
第2张
卫生间
第1张
门厅
第1张
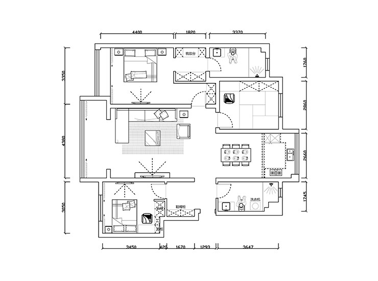
户型图
第1张
第2张
  • 案例详情

御景新世界-147平-美式风格-客厅1.jpg 御景新世界-147平-美式风格-客厅2.jpg 御景新世界-147平-美式风格-客厅3.jpg

客厅作为待客区域,装饰简洁明快,宽敞富有温馨感。

御景新世界-147平-美式风格-餐厅.jpg

古朴的实木餐桌,桌子与桌椅一般都有弧度,是经典的美式风格。与灯光的搭配更显得家的温馨。

御景新世界-147平-美式风格-卧室2.jpg 御景新世界-147平-美式风格-卧室1.jpg

美式家居的卧室布置较为温馨,作为主人的私密空间,主要以功能性和实用舒适为考虑的重点。

御景新世界-147平-美式风格-卫生间.jpg 御景新世界-147平-美式风格-玄关.jpg 御景新世界-147平-美式风格-平面布置图.jpg 御景新世界-147平-美式风格-卧室草图.jpg

案例设计师

林凤装饰设计师

设计师:林凤装饰设计师

从业时间:8年

设计理念:好的设计是实用性,经济性,和艺术性的高度统一。

预约设计师

算算你家装修多少钱

报名即享丰厚赠品,享半价装修

免费报价
咨询热线:400-656-9909
20190221103704574636.jpg

精品设计案例

20180612134930523248.jpg 服务号二维码.jpg