立即预约 立即预约
免费定制整装家居

免费定制整装家居

一站置家 全程无忧 一省到底
hide.png

当前位置: 首页 > 装修案例效果图 > 中海寰宇天下

中海寰宇天下 140平 欧式风格效果图

收藏
案例风格 欧式 案例户型 三居 案例面积 140平米
楼盘名称 中海寰宇天下 设计师 林凤装饰设计师 案例类型 改善性住宅

设计理念:本案主要特别注意色彩的搭配整个空间主色调白色,造型适中主要以软装突出重点。

客厅
第1张
第2张
餐厅
第1张
卧室
第1张
卫生间
第1张
厨房
第1张
衣帽间
第1张
门厅
第1张
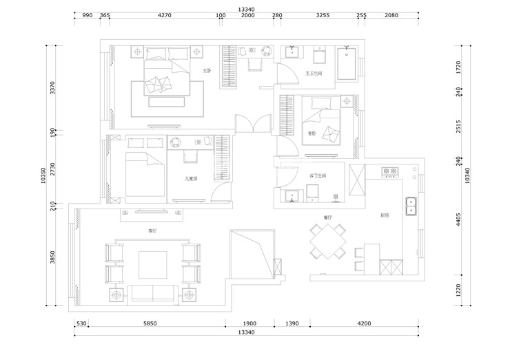
户型图
第1张
  • 案例详情

S8-刘铠铭-中海寰宇天下-140平-欧式-客厅沙发背景墙.jpg S8-刘铠铭-中海寰宇天下-140平-欧式-客厅电视背景墙.jpg

业主比较喜白色系设计效果,喜欢欧式风格独有的曲线线条美感,整个客厅空间的理石地砖铺贴以及背景墙特殊的造型和镜面的使用使空间地面华丽立体感强烈,配合上一部分浅色金箔色彩的家具让整个空间更加灵动,华丽,更加美感。

S8-刘铠铭-中海寰宇天下-140平-欧式-餐厅.jpg

餐厅设计让整体餐厅效果是比较大众化的欧式整体感,对应棚面的效果显得更有空间感,另外旁边配上软装画饰会让整个餐厅更加丰富。

S8-刘铠铭-中海寰宇天下-140平-欧式-卧室.jpg

卧室的整体还是围绕欧式元素的色彩及造型装饰为主,突出休息空间的舒适度和整体效果。

S8-刘铠铭-中海寰宇天下-140平-欧式-卫生间.jpg

卫生间选择了地砖上墙理石纹理,纹理分明的瓷砖作为主题背景色,丰富元素的条纹设计更是卫生间的一大亮点,赋予了整个空间高端华丽感的设计效果,让整体空间更加独特档次。

S8-刘铠铭-中海寰宇天下-140平-欧式-厨房.jpg

厨房采用300*600土黄色龙纹纹理的瓷砖作为背景色,搭配上白色效果十足的橱柜和深黄色的理石台面,让整体空间更好的跟整体风格完美融合立体感更加强烈,让主人在烹饪过程中自然的感到温馨愉悦。

S8-刘铠铭-中海寰宇天下-140平-欧式-衣帽间.jpg S8-刘铠铭-中海寰宇天下-140平-欧式-玄关.jpg S8-刘铠铭-中海寰宇天下-140平-欧式-平面图.jpg

案例设计师

林凤装饰设计师

设计师:林凤装饰设计师

从业时间:10年

设计理念:设计是具有灵魂的。从生活出发,在生活中思考,让生活升华。实用与形式美感相互融合,满足功能需求及精神需求,使“家”这个私属空间更方便、更舒适、更个性、更能表达主人生活的态度。

预约设计师

算算你家装修多少钱

报名即享丰厚赠品,享半价装修

免费报价
咨询热线:400-656-9909
20190221103704574636.jpg

精品设计案例

20180612134930523248.jpg 服务号二维码.jpg