立即预约
免费定制整装家居
一站置家 全程无忧 一省到底
当前位置: 首页 > 装修案例效果图 > 鑫丰熙区府|现代风格
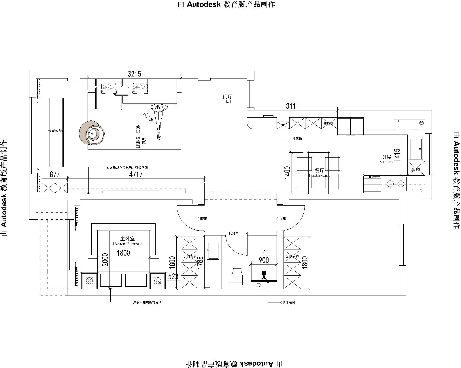
设计理念:本案是现代简约风格,整体设计主要颜色为白灰色系,简约而不简单,采用简洁的方式来实现装修的美感,照映着我们平淡简单的美好生活。
客厅棚顶做的吊棚造型,采用无主光源无主灯设计,通过筒灯氛围灯以及磁吸灯来照明,简约大气的视觉观感给予家中满满的时尚风格。
餐厅也是贯彻了实用简洁为主的理念,是一个4人位的餐桌,旁边链接着厨房的中岛台,用餐时会有更大的空间,而餐桌台面颜色也是中岛台面设计颜色进行了呼应。
卧室是家中最温馨浪漫的地方,一款时尚简约的卧室背景墙更是卧室设计中的重头戏。设计上多运用点、线、面等要素形式美的基本原则,使造型和谐统一而富于变化,使卧室背景墙层次丰富、错落有致。
卫生间的墙壁地面使用的都是灰色性瓷砖,看起来融为一体,并且洗手台的柜体颜色也是深灰色,使卫生间看起来更加的干净整洁。
结构上采用开放式,餐厅和厨房设计在一起,这样看起来空间会宽敞很多。其厨房地面材料全部采用和客厅同样的瓷砖铺设而成,灶台台面全部采用的是白色,上橱柜用的是全屋的主色系,和鞋柜餐边柜以及电视柜一样的颜色,看起来更整体干净、利索、整洁。
精品设计案例
设计说明:
三室两厅一厨两卫,高层整体采用美式风格,色调以深色为主,体现美式的居家感和温馨感。
设计说明:
本案业主为年轻时尚小两口,所以我们考虑到未来想要给未来宝宝一个温馨舒适的一个房间,所以本案整体采用现代风格的手法,运用颜色,来打造整体空间的设计感及时尚感
设计说明:
本案以北欧风格为主题的设计,北欧风格能以现代、简洁、自然的特点俘获人心,所营造出来的生活氛围会让人倍感舒适与自在。
设计说明:
客户是一名成功人士,对于家的执念就是简单干净,客户衣服比较多,所以把每个空间都做了大衣柜,并且融入到设计里