立即预约 立即预约
免费定制整装家居

免费定制整装家居

一站置家 全程无忧 一省到底
hide.png

当前位置: 首页 > 装修案例效果图 > 旭辉御府|轻奢风格

旭辉御府|轻奢风格 500平 轻奢风格效果图

收藏
案例风格 轻奢 案例户型 二居 案例面积 500平米
楼盘名称 旭辉御府 设计师 杨达 案例类型 改善性住宅

设计理念:现代轻奢风格以简洁流畅的线条为基础,融合精致材质与高级色调,通过巧妙的细节设计与灯光运用,打造兼具时尚感与品质感的居住空间。本案以黑白灰为主色调,搭配金属、大理石等元素,为沈阳府小区业主营造出优雅大气、低调奢华的生活氛围。

客厅
第1张
卧室
第1张
第2张
第3张
第4张
卫生间
第1张
厨房
第1张
休闲区
第1张
门厅
第1张
户型图
第1张
第2张
第3张
第4张
旭辉御府-500平-现代轻奢-客厅.jpg

客厅地面铺设深灰色大理石瓷砖,搭配同色系美缝,呈现浑然一体的视觉效果。电视背景墙采用岩板与金属线条结合的设计,底部悬空并嵌入暖光灯带,增强空间立体感。L型深灰色真皮沙发搭配黑色金属脚,搭配白色大理石纹理茶几,顶部无主灯设计结合磁吸轨道灯与筒灯,营造出简约而不失格调的会客空间。

旭辉御府-500平-现代轻奢-次卧室.jpg 旭辉御府-500平-现代轻奢-主卧室.jpg 旭辉御府-500平-现代轻奢-主卧室办公区.jpg 旭辉御府-500平-现代轻奢-卧室玄关.jpg

卧室墙面以浅灰色墙布为基底,床头背景墙采用硬包材质,搭配金属线条装饰,提升质感。深灰色皮质床具搭配同色系床品,两侧摆放造型简约的金属台灯。定制通顶白色衣柜,柜门采用玻璃与板材拼接设计,内嵌灯带,既实用又美观。无主灯设计结合暗藏灯带与床头壁灯,营造温馨舒适的休憩氛围。

旭辉御府-500平-现代轻奢-卫生间.jpg

卫生间墙面采用鱼肚白大理石瓷砖通铺,地面搭配深灰色防滑大理石地砖,形成强烈的色彩对比。洗漱区采用悬浮式岩板一体盆,搭配黑色不锈钢柜体,安装智能防雾镜并配备环形灯带。淋浴区采用黑色极窄边框玻璃隔断,搭配恒温花洒,营造出精致时尚的卫浴空间。

旭辉御府-500平-现代轻奢-厨房.jpg

厨房采用U型布局,橱柜选用哑光黑色烤漆面板,搭配玫瑰金色隐形拉手,尽显高级感。台面采用白色岩板材质,耐磨易清洁。墙面铺贴爵士白大理石瓷砖,搭配嵌入式筒灯与柜底灯带,整体空间明亮通透,现代感十足。

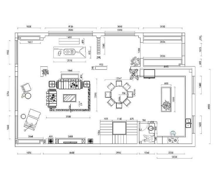
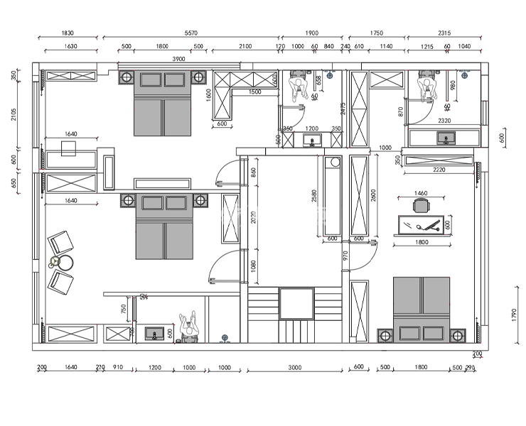
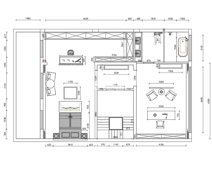
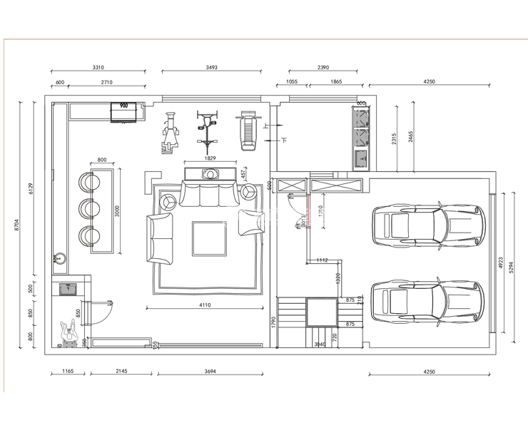
旭辉御府-500平-现代轻奢-影音室首图.jpg 旭辉御府-500平-现代轻奢-玄关.jpg 旭辉御府-500平-现代轻奢-平面布局二楼.jpg 旭辉御府-500平-现代轻奢-平面布局负一楼.jpg 旭辉御府-500平-现代轻奢-平面布局三楼.jpg 旭辉御府-500平-现代轻奢-平面布局一楼.jpg

案例设计师

杨达

设计师:杨达

从业时间:10年

设计理念:精雕细琢,返璞归真。

预约设计师

算算你家装修多少钱

报名即享丰厚赠品,享半价装修

免费报价
咨询热线:400-656-9909
20190221103704574636.jpg

精品设计案例

20180612134930523248.jpg 服务号二维码.jpg