立即预约 立即预约
免费定制整装家居

免费定制整装家居

一站置家 全程无忧 一省到底
hide.png

当前位置: 首页 > 装修案例效果图 > 汇置尚郡|现代轻奢

汇置尚郡|现代轻奢 360平 轻奢风格效果图

收藏
案例风格 轻奢 案例户型 三居 案例面积 360平米
楼盘名称 汇置尚郡 设计师 白涵琦 案例类型 改善性住宅

设计理念:本案以轻奢的设计手法,它不仅仅是一种装饰风格,更是一种生活态度。
现代轻奢的家具和装饰品注重细节和品质,以简洁而精致的设计为人们创造温馨舒适的居住空间。

客厅
第1张
第2张
卧室
第1张
第2张
第3张
第4张
卫生间
第1张
书房
第1张
门厅
第1张
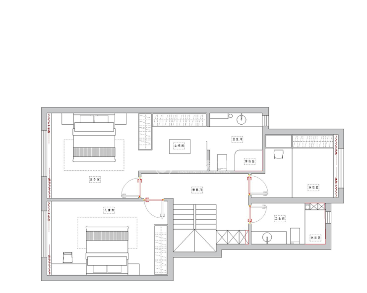
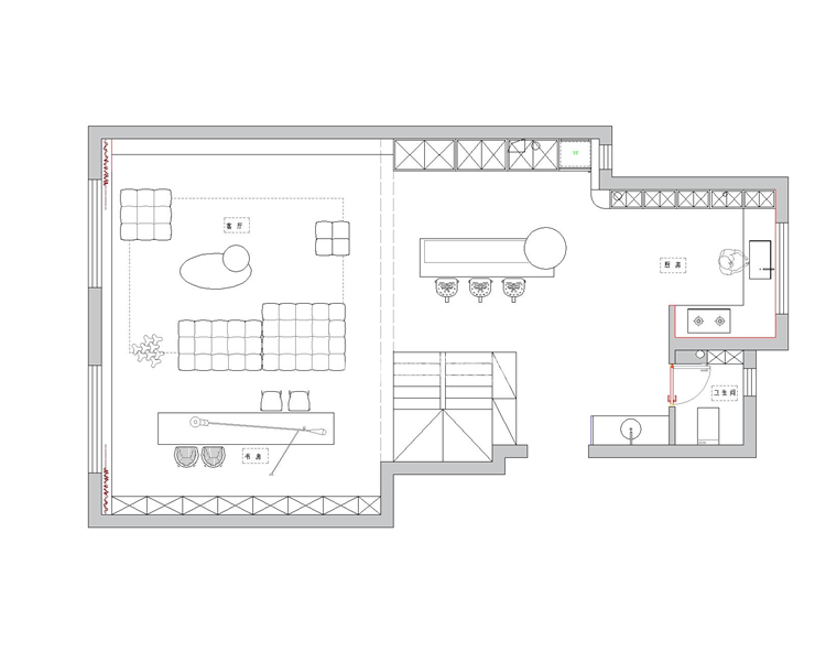
户型图
第1张
第2张
汇置尚郡-185平-现代轻奢-客厅.jpg 汇置尚郡-185平-现代轻奢-首图.jpg

客厅不仅作为会客起居之用,更是主人生活方式跟品味的展示。以咖暖白色调为主,用色简洁大气而温馨,搭配虚光灯带使整个空间更有质感。客厅与餐厅通透连贯,视觉上延伸空间。

汇置尚郡-185平-现代轻奢-客卧2.jpg 汇置尚郡-185平-现代轻奢-客卧.jpg 汇置尚郡-185平-现代轻奢-主卧衣帽间.jpg 汇置尚郡-185平-现代轻奢-主卧.jpg

主卧内划分三个功能区,卧室、衣帽、卫生间,空间相对独立,即使与家人的生活习惯不同,也不会相互打扰。

汇置尚郡-185平-现代轻奢-卫生间.jpg

卫生间采用暖色调,配合T型浴屏,让卫生间更大气,整体的色调给人一种温馨的感觉。

汇置尚郡-185平-现代轻奢-书房.jpg 汇置尚郡-185平-现代轻奢-入户.jpg 汇置尚郡-185平-现代轻奢-平面布置图1楼.jpg 汇置尚郡-185平-现代轻奢-平面布置图2楼.jpg

案例设计师

白涵琦

设计师:白涵琦

从业时间:10年

设计理念:设计实现客户家居梦想

预约设计师

算算你家装修多少钱

报名即享丰厚赠品,享半价装修

免费报价
咨询热线:400-656-9909
20190221103704574636.jpg

精品设计案例

20180612134930523248.jpg 服务号二维码.jpg