立即预约 立即预约
免费定制整装家居

免费定制整装家居

一站置家 全程无忧 一省到底
hide.png

当前位置: 首页 > 装修案例效果图 > 中粮堂悦|现代轻奢

中粮堂悦|现代轻奢 128平 现代简约风格效果图

收藏
案例风格 现代简约 案例户型 三居 案例面积 128平米
楼盘名称 中粮堂悦 设计师 郑婷婷 案例类型 改善性住宅

设计理念:整体设计理念:轻奢风以简约、舒适、低调而内敛为特点,表现出高贵与奢华的品质。

客厅
第1张
第2张
第3张
餐厅
第1张
卧室
第1张
第2张
卫生间
第1张
厨房
第1张
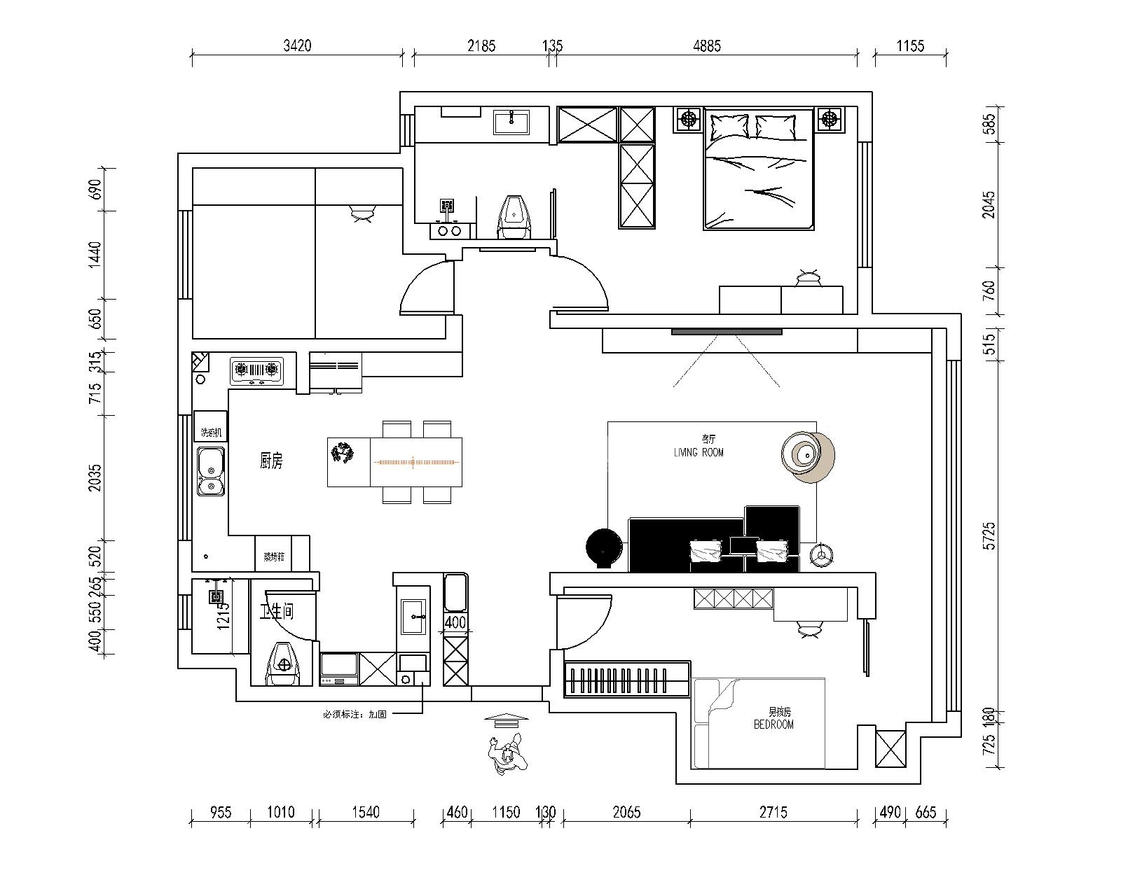
户型图
第1张
保利中粮堂悦-128-现代-客厅.jpg 保利中粮堂悦-128-现代-客厅1.jpg 保利中粮堂悦-128-现代-客厅2.jpg

把外露台风道室内,增加了空间和采光。色调为低饱和度,以灰色系为主。整体做了无主灯设计,没有大吊灯的压迫感,是空间看起来更加宽敞。墙面用墙板装饰,通过墙板的不同颜色和灯光更有层次。

保利中粮堂悦-128-现代-餐厅2.jpg

把外露台风道室内,增加了空间和采光。色调为低饱和度,以灰色系为主。整体做了无主灯设计,没有大吊灯的压迫感,是空间看起来更加宽敞。墙面用墙板装饰,通过墙板的不同颜色和灯光更有层次。

保利中粮堂悦-128-现代-儿卧.jpg 保利中粮堂悦-128-现代-主卧.jpg

地砖全屋通铺,床下铺地毯让卧室增加温馨感。床头设计了墙板加背景光,更有氛围。

保利中粮堂悦-128-现代-卫生间.jpg

做了干湿分离的设计,手盆旁正面墙的高柜设计,放生活用品,非常实用。

保利中粮堂悦-128-现代-厨房.jpg

厨房为开敞式,一侧为高柜,内嵌冰箱,零食柜及蒸烤箱。中间用大砖来铺贴,缝隙少,好打理

保利中粮堂悦-128-现代-平面图.jpg

案例设计师

郑婷婷

设计师:郑婷婷

从业时间:9年

设计理念:用心与住宅对话,交织出住宅中的灵魂所属

预约设计师

算算你家装修多少钱

报名即享丰厚赠品,享半价装修

免费报价
咨询热线:400-656-9909
20190221103704574636.jpg

精品设计案例

20180612134930523248.jpg 服务号二维码.jpg