立即预约 立即预约
免费定制整装家居

免费定制整装家居

一站置家 全程无忧 一省到底
hide.png

当前位置: 首页 > 装修案例效果图 > 沈安小区|现代风格

沈安小区|现代风格 150平 现代简约风格效果图

收藏
案例风格 现代简约 案例户型 三居 案例面积 150平米
楼盘名称 沈安小区 设计师 姜宇 案例类型 改善性住宅

设计理念:设计师整体设计理念:本案设计整体以暖白色与木色的进行搭配,让整体空间明亮,舒适,实用。

客厅
第1张
第2张
餐厅
第1张
第2张
卧室
第1张
第2张
第3张
卫生间
第1张
第2张
厨房
第1张
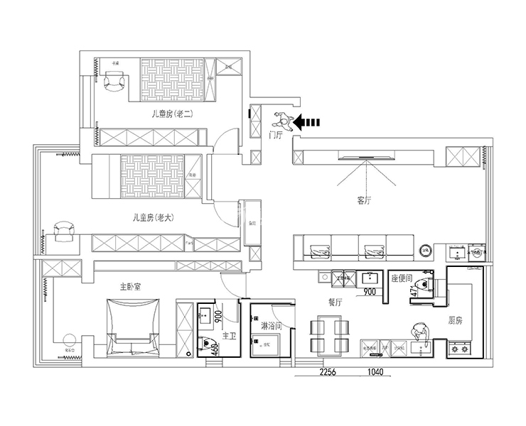
户型图
第1张
沈安小区-150-现代风格-客厅.jpg 沈安小区-150-现代风格-首图.jpg

客厅说明:为了增加客厅的储物空间,客厅电视墙部分和沙发墙部分都是做的整面墙的定制柜设计,让电视嵌入到定制柜内,通过开放格的设计让原本比较闷的墙面,有一些层次感。

沈安小区-150-现代风格-餐厅.jpg 沈安小区-150-现代风格-餐厅01.jpg

餐厅说明: 餐厅空间紧挨着厨房,所以餐厅整体设计比较简单,没做过多的装饰,主要让餐厅和厨房连接在一起。

沈安小区-150-现代风格-儿童房.jpg 沈安小区-150-现代风格-儿童房01.jpg 沈安小区-150-现代风格-主卧室.jpg

卧室说明: 卧室的设计比较注重储物空间,增加收纳,整体以简单明亮为主。

沈安小区-150-现代风格-主卫生间.jpg 沈安小区-150-现代风格-淋浴间.jpg

卫生间说明:卫生间采用的浅米色砖,配合浅色的浴柜,让小空间显得更加宽敞。

沈安小区-150-现代风格-厨房.jpg

厨房说明:本案是半开放式厨房,浅色的橱柜和浅色的瓷砖搭配,让厨房空间更加明亮。

沈安小区-150-现代风格-平面图.jpg

案例设计师

姜宇

设计师:姜宇

从业时间:18年

设计理念:适合人居舒适的环境设计才是好设计

预约设计师

算算你家装修多少钱

报名即享丰厚赠品,享半价装修

免费报价
咨询热线:400-656-9909
20190221103704574636.jpg

精品设计案例

20180612134930523248.jpg 服务号二维码.jpg