立即预约 立即预约
免费定制整装家居

免费定制整装家居

一站置家 全程无忧 一省到底
hide.png

当前位置: 首页 > 装修案例效果图 > 荣华府|现代意式风格

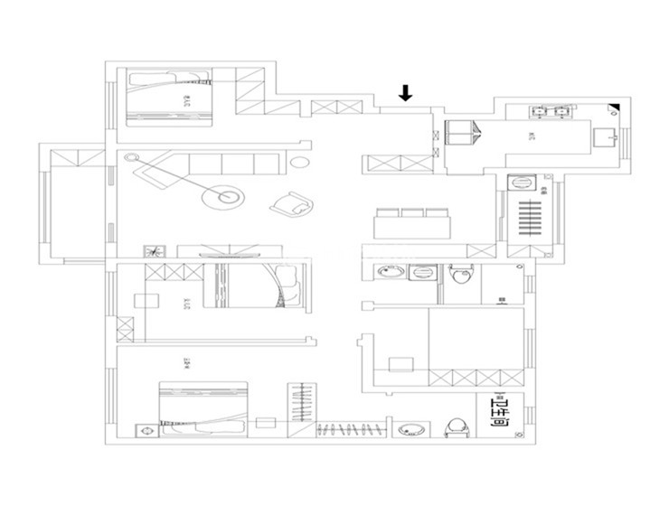
荣华府|现代意式风格 160平 现代简约风格效果图

收藏
案例风格 现代简约 案例户型 四居 案例面积 160平米
楼盘名称 荣华府 设计师 全案整装 案例类型 改善性住宅

设计理念:设计说明:人的一生,绝大部分时间是在室内度过的,因此,人们设计创造的室内环境要更加考虑一些舒适性

S4荣华府160平-现代-客厅.png S4荣华府160平-现代-客厅 (2).png S4荣华府160平-现代--客厅.png S4荣华府160平-现代-客厅1.png

客厅说明:瓷砖通铺 配合超大落地窗 使人眼前一亮 给出一种干净大气的感觉

S4荣华府160平-现代-餐厅 (2).png S4荣华府160平-现代-餐厅 (3).png S4荣华府160平-现代-餐厅.png

餐厅说明:棚面的调整,客餐厅融为一体,配合客厅整体风格

S4荣华府160平-现代-次卧 (2).png S4荣华府160平-现代-次卧.png S4荣华府160平-现代-主卧.png S4荣华府160平-现代-主卧1.png

卧室设计说明:卧室软装部分配的更多一些,主要做的就是以温馨,让睡眠舒适性更强一些。

S4荣华府160平-现代-次卫.png S4荣华府160平-现代-主卫.png

卫生间说明: 卫生间用的整体素色的砖,配上浅色系的浴柜,更加简洁一些

S4荣华府160平-现代-书房.png 远洋仰山作图-Mod1el.jpg

案例设计师

全案整装

设计师:全案整装

从业时间:6年

设计理念:空间是生活的一部分,但我们设计一个空间时要考虑的是生活的全部。

预约设计师

算算你家装修多少钱

报名即享丰厚赠品,享半价装修

免费报价
咨询热线:400-656-9909
20190221103704574636.jpg

精品设计案例

20180612134930523248.jpg 服务号二维码.jpg