立即预约 立即预约
免费定制整装家居

免费定制整装家居

一站置家 全程无忧 一省到底
hide.png

当前位置: 首页 > 装修案例效果图 > 富力星月湾|现代简约

富力星月湾|现代简约 150平 现代简约风格效果图

收藏
案例风格 现代简约 案例户型 三居 案例面积 150平米
楼盘名称 富力星月湾 设计师 肖婷婷 案例类型 改善性住宅

设计理念:设计师整体设计理念:现代简约,改善型住房 ,三口之家,根据客户需求对房屋收纳空间和厨房空间加以优化。

客厅
第1张
第2张
第3张
餐厅
第1张
卧室
第1张
第2张
卫生间
第1张
第2张
厨房
第1张
衣帽间
第1张
过廊
第1张
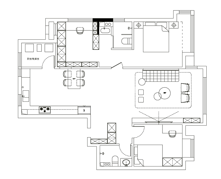
户型图
第1张
富力星月湾-150平-现代简约-客厅.jpg 富力星月湾-150平-现代简约-电视背景墙首图.jpg 富力星月湾-150平-现代简约-沙发背景.jpg

客厅说明: 客厅造型以轻奢风格为主,室内空间感简明开阔,沙发背景以收纳储物为主,简约玻璃门进行点缀,打破单调,加以钨钢金属条轻奢感极强。背景墙隐藏门设计让门与景墙融为一体。

富力星月湾-150平-现代简约-餐厅.jpg

餐厅说明:餐厅与客厅搭配融为一体,主体色条形成一致。餐桌椅以及酒柜颜色和整体颜色相呼应,灯具颜色提升颜色亮点但又不和主体起到冲突,美观简洁

富力星月湾-150平-现代简约-南次卧.jpg 富力星月湾-150平-现代简约-主卧室.jpg

卧室说明:卧室的颜色和房屋整体颜色一致,卧室部分选用颜色显得沉稳不浮夸,配上床饰舒适度强,能给户主在家的感觉放松到极致

富力星月湾-150平-现代简约-公卫.jpg 富力星月湾-150平-现代简约-主卫.jpg

卫生间说明:卫生间采用单手盆设计方便使用 空间使用率更高 现代人生活节奏快 体现合理使用上的人性化,双卫生间更能方便使用错过早起的忙碌时间。

富力星月湾-150平-现代简约-厨房.jpg

厨房说明:开放和餐桌链接,橱柜使得厨房的储物及摆放更为突出,体现厨房最大的利用价值,双开门冰箱能给客户带来更加便利的生活享受

富力星月湾-150平-现代简约-衣帽间.jpg 富力星月湾-150平-现代简约-过廊.jpg 富力星月湾-150平-现代简约-平面布置图.jpg

案例设计师

肖婷婷

设计师:肖婷婷

从业时间:10年

设计理念:持之以恒的学习是设计的来源,责任感是设计的原则,而灵感是设计的升华。

预约设计师

算算你家装修多少钱

报名即享丰厚赠品,享半价装修

免费报价
咨询热线:400-656-9909
20190221103704574636.jpg

精品设计案例

20180612134930523248.jpg 服务号二维码.jpg