立即预约 立即预约
免费定制整装家居

免费定制整装家居

一站置家 全程无忧 一省到底
hide.png

当前位置: 首页 > 装修案例效果图 > 金地樾檀山|意式极简

金地樾檀山|意式极简 150平 其他风格效果图

收藏
案例风格 其他 案例户型 一居 案例面积 150平米
楼盘名称 金地樾檀山 设计师 林凤设计师 案例类型 儿童房

设计理念:打造拒绝庸俗的一种生活态度和舒适的私人居家空间。

客厅
第1张
餐厅
第1张
卧室
第1张
第2张
卫生间
第1张
第2张
厨房
第1张
书房
第1张
儿童房
第1张
门厅
第1张
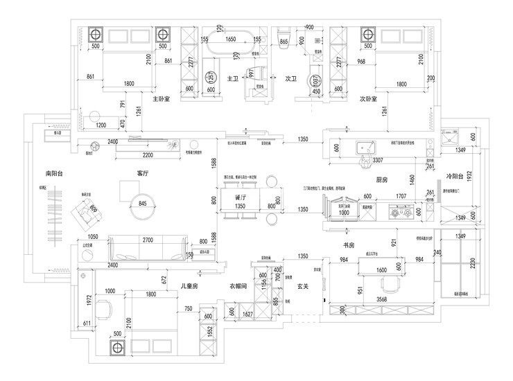
户型图
第1张
金地樾檀山150平-意式极简风格-客厅.jpg

电视背景两侧采用了大理石与格栅护墙板搭配,背景墙底部大理石完整纹理看上去更简洁大气,整体,满足了审美需求的同时也起到了材质与色彩的视觉反差碰撞。

金地樾檀山150平-意式极简风格-餐厅.jpg 金地樾檀山150平-意式极简风格-次卧.jpg 金地樾檀山150平-意式极简风格-主卧.jpg

主卧室原木色地板搭配米灰色床头背景墙与黑色色衣帽间门相互呼应完美结合,烟灰色窗帘恰到好处的稳住整个空间的明暗度;次卧室深灰色衣柜穿插玻璃门内嵌虚光灯槽也改善了衣柜光线不足的缺点,一虚一实满足了收纳空间的同时也显得空间干净整洁。

金地樾檀山150平-意式极简风格-次卫.jpg 金地樾檀山150平-意式极简风格-主卫.jpg

灰色瓷砖墙面与黑色金属门结合在颜色上给人一种高级的感觉,整个空间简洁大气现代与美式的感觉完美融合。

金地樾檀山150平-意式极简风格-厨房.jpg

橱柜选用了灰色油漆面门板搭配黑色隐藏拉手,色彩统一整洁大气与厨房黑色推拉门材质色彩统一。

金地樾檀山150平-意式极简风格-书房.jpg 金地樾檀山150平-意式极简风格-儿童房.jpg 金地樾檀山150平-意式极简风格-玄关.jpg

灰色亚光门板鞋柜显得整洁有艺术感,胡桃木色柜体板完美的与灰色门板融合。

金地樾檀山150平-意式极简风格-户型图.jpg

案例设计师

林凤设计师

设计师:林凤设计师

从业时间:7年

设计理念:

预约设计师

算算你家装修多少钱

报名即享丰厚赠品,享半价装修

免费报价
咨询热线:400-656-9909
20190221103704574636.jpg

精品设计案例

20180612134930523248.jpg 服务号二维码.jpg