立即预约 立即预约
免费定制整装家居

免费定制整装家居

一站置家 全程无忧 一省到底
hide.png

当前位置: 首页 > 装修案例效果图 > 其仕盛和祥|现代轻奢

其仕盛和祥|现代轻奢 85平 轻奢风格效果图

收藏
案例风格 轻奢 案例户型 二居 案例面积 85平米
楼盘名称 其仕盛和祥 设计师 王禹厶 案例类型 改善性住宅

设计理念:本次案例是母亲买给儿子为了以后结婚所用,客户的想法要简单大气,舒适方便。暂时自己居住。

客厅
第1张
第2张
第3张
第4张
餐厅
第1张
卧室
第1张
第2张
卫生间
第1张
第2张
第3张
厨房
第1张
第2张
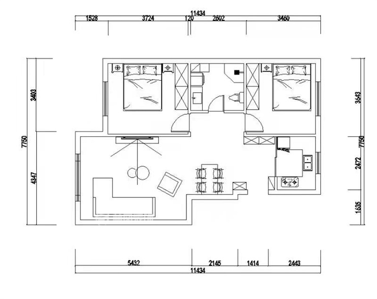
户型图
第1张
其仕盛和祥-现代轻奢-85平-客厅 (1).jpg 其仕盛和祥-现代轻奢-85平-客厅 (2).jpg 其仕盛和祥-现代轻奢-85平-客厅 (3).jpg 其仕盛和祥-现代轻奢-85平-首图.jpg

客厅主题色调偏暖,多运用理石,来增添客厅的整体质感,金属配饰元素的运用,使单调的客厅增加了氛围感,色彩也更加突出。简单的配饰不会显得繁琐,也是凸显现代风格的重要因素。

其仕盛和祥-现代轻奢-85平-餐厅 (1).jpg

大理石的餐桌,以及餐桌下半部分的金属元素,使其更富有设计感,上方的餐吊更是在一定基础上给餐厅的整体风格加了分,在简单的基础上,通过软装的加持,渲染效果,让餐厅空间在视觉效果上,更加简约大气。

其仕盛和祥-现代轻奢-85平-次卧.jpg 其仕盛和祥-现代轻奢-85平-主卧.jpg

次卧,简单的颜色更能体现卧室温馨的氛围感,主卧颜色搭配和谐,高端大气,符合年轻人的审美。

其仕盛和祥-现代轻奢-85平-卫生间 (1).jpg 其仕盛和祥-现代轻奢-85平-卫生间 (2).jpg 其仕盛和祥-现代轻奢-85平-卫生间 (3).jpg

生间做了定制形式的手盆在做到美观的同时,又方便了洗漱需求,采用镜柜,增加了储物空间,方便平时放置一些洗漱用品,浴屏是独立的设计,既做到了干湿分离,又使空间更加整洁明亮。洗衣机内嵌的方式,节约空间。

其仕盛和祥-现代轻奢-85平-厨房  (1).jpg 其仕盛和祥-现代轻奢-85平-厨房  (2).jpg

厨房为封闭式厨房,以灰色和白色为主,拉门采用联动式,增加客厅的采光。深浅搭配的柜体颜色,告别了单一颜色的沉闷和死板,更符合现代风格的简约和时尚。

其仕盛和祥-现代轻奢-85平-户型图.jpg

案例设计师

王禹厶

设计师:王禹厶

从业时间:10年

设计理念:坚持原创,坚持一切美好

预约设计师

算算你家装修多少钱

报名即享丰厚赠品,享半价装修

免费报价
咨询热线:400-656-9909
20190221103704574636.jpg

精品设计案例

20180612134930523248.jpg 服务号二维码.jpg