立即预约 立即预约
免费定制整装家居

免费定制整装家居

一站置家 全程无忧 一省到底
hide.png

当前位置: 首页 > 装修案例效果图 > 绿城全运村|现代简约

绿城全运村|现代简约 135平 现代简约风格效果图

收藏
案例风格 现代简约 案例户型 三居 案例面积 135平米
楼盘名称 绿城全运村 设计师 林凤设计师 案例类型 改善性住宅

设计理念:客户喜欢宽敞大气的感觉。所以方案中去掉了客厅与卧室之间墙。业主是一对年轻夫妇,家里有一个小男孩和一个老人。喜欢宽敞大方的感觉。要保留一个书房,一个儿童房。

客厅
第1张
第2张
餐厅
第1张
第2张
卧室
第1张
卫生间
第1张
厨房
第1张
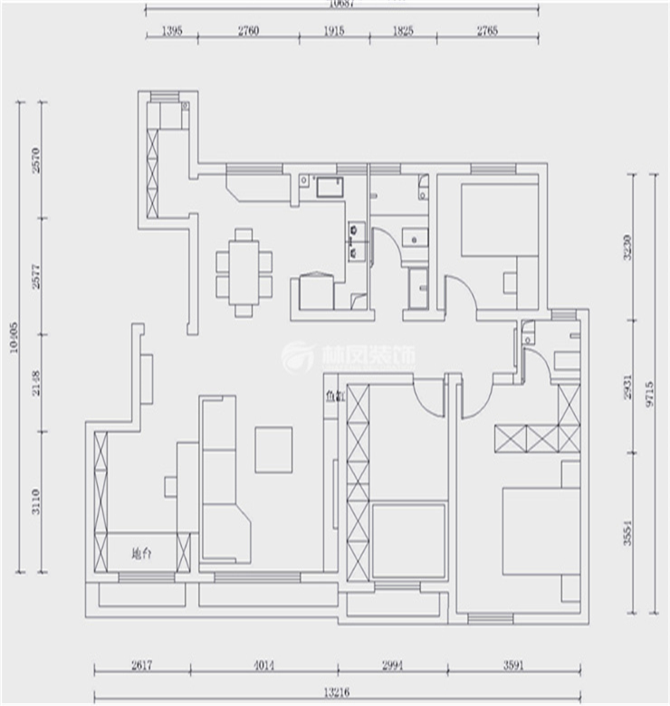
户型图
第1张
绿城全运村-现代港式风格-客厅1.jpg 绿城全运村-现代港式风格-客厅6.jpg

客厅和书房的墙体打开使整个空间看起来更宽敞,而且客厅的人和书房的人还能有一个很好的互动。客厅的电视背景墙采用格栅和大理石结合的设计,电视柜采用大理石定制。这样的设计试整个空间看起来更大气。

绿城全运村-现代港式风格-餐厅2.jpg 绿城全运村-现代港式风格-餐厅3.jpg

餐厅的餐桌为可以伸拉的餐桌。餐桌旁定制一个矮的橱柜解决了厨房空间小的问题。增加了收纳的功能。

绿城全运村-现代港式风格-卧室.jpg

主卧室的背景墙是用灰色的乳胶漆调试的,与红色的床头软包形成鲜明的对比 床头背景墙的挂画突出了现代港式风格的特点。床头的两个吊顶烘托整个空间的氛围。

绿城全运村-现代港式风格-卫生间.jpg

卫生间的风格整体为暖色调。地面铺的是纹理比较细颜色比较深的地砖,与白色的墙砖形成对比。烘托出卫生间的暖色调。

绿城全运村-现代港式风格-厨房.jpg

厨房的下柜为深色木质的材质。上柜是白色的柜体,木色与白色结合使整个空间看起来更高级。

绿城全运村-现代港式风格-户型图.jpg

案例设计师

林凤设计师

设计师:林凤设计师

从业时间:8年

设计理念:设计界的一股清流,设计走心最重要。

预约设计师

算算你家装修多少钱

报名即享丰厚赠品,享半价装修

免费报价
咨询热线:400-656-9909
20190221103704574636.jpg

精品设计案例

20180612134930523248.jpg 服务号二维码.jpg