立即预约 立即预约
免费定制整装家居

免费定制整装家居

一站置家 全程无忧 一省到底
hide.png

当前位置: 首页 > 装修案例效果图 > 金地长青湾

金地长青湾 178平 现代简约风格效果图

收藏
案例风格 现代简约 案例户型 三居 案例面积 178平米
楼盘名称 金地长青湾 设计师 吴勇 案例类型 改善性住宅

设计理念:本案是将极简风格与轻奢风格相结合的一套颇具特色的作品,在设计理念上,本设计师考虑的是室内简洁干练,墙体护墙板与软包相结合,轻奢本来就是一种生活的体现,所以在创作过程中也考虑到了业主的生活品质和对生活的一种向往。

客厅
第1张
第2张
餐厅
第1张
卧室
第1张
卫生间
第1张
厨房
第1张
儿童房
第1张
门厅
第1张
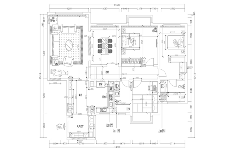
户型图
第1张
  • 案例详情

金地长青湾-178平-港式风格-客厅1.jpg 金地长青湾-178平-港式风格-客厅.jpg

本案户型客厅在整个设计中尤为重要,在设计过程中是将一个卧室的空间改造成餐厅,使客厅与餐厅相互衔接又互不干扰。电视背景墙是使用大理石作为主要材质,简单的金色线条作为点缀,使得整个空间尤为大气,沙发背景使用的是护墙板,原木色的装饰结合整个空间的配色,将轻奢的感觉体现的淋淋尽致。

金地长青湾-178平-港式风格-餐厅.jpg

餐厅作为一个独立的空间与客厅相结合,相互呼应。地面使用爵士白的瓷砖和西伯利亚灰瓷砖相结合,啡网纹的波导线将整体地面凸显出高档的感觉,叠级的吊棚与地面相呼应,六人位的餐桌使整体的空间有一个定位感。

金地长青湾-178平-港式风格-主卧室.jpg

在卧室内我采用的是软包背景墙,它与卧室的床非常的匹配,无论在色调上还是材质上都非常融合,浅柚木色的地板以及干支的摆放使得整个空间更见贴近自然。

金地长青湾-178平-港式风格-卫生间.jpg

当灰色亚光的瓷砖与玻璃浴屏以及胡桃色的洗手盆汇聚到一起之后,整个卫生间很有韵味,白色的理石台面结合柔和的灯光,将人带进一种自然的感觉。两侧镂空的设计也是整个卫生间的一个亮点,既增加了储藏量,也使整体更为灵活。

金地长青湾-178平-港式风格-厨房.jpg 金地长青湾-178平-港式风格-儿童房.jpg 金地长青湾-178平-港式风格-门厅.jpg 金地长青湾-178平-港式风格-平面图.jpg

案例设计师

吴勇

设计师:吴勇

从业时间:11年

设计理念:用抽象的思维去设计形象的事物

预约设计师

算算你家装修多少钱

报名即享丰厚赠品,享半价装修

免费报价
咨询热线:400-656-9909
20190221103704574636.jpg

精品设计案例

20180612134930523248.jpg 服务号二维码.jpg