立即预约 立即预约
免费定制整装家居

免费定制整装家居

一站置家 全程无忧 一省到底
hide.png

当前位置: 首页 > 装修案例效果图 > 金地檀府-现代简约

金地檀府-现代简约 89平 现代简约风格效果图

收藏
案例风格 现代简约 案例户型 二居 案例面积 89平米
楼盘名称 金地檀府 设计师 林凤设计师 案例类型 改善性住宅

设计理念:在现代装修设计中备受推崇依然是简约风格为主。所谓的现代简约,整体是以极致简约风格为基础,通过一些精致的软装元素来凸显质感,同时也搭配出意想不到的功能与细节,从而彰显了一种高品质的整体效果。

客厅
第1张
第2张
第3张
餐厅
第1张
第2张
卧室
第1张
第2张
卫生间
第1张
厨房
第1张
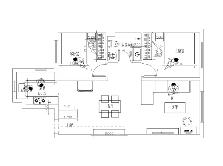
户型图
第1张
金地檀府-89-现代简约-客厅1.jpg 金地檀府-89-现代简约-客厅2.jpg 金地檀府-89-现代简约-客厅3.jpg

全屋是中央空调。简单的吊棚不做任何装饰灯带显得格外简约大气。简约原木色的墙板和白色棚面极其的搭配。客厅空间给业主保留了办公的区域。房子虽小但是功能区域绝对样样齐备。

金地檀府-89-现代简约-餐厅1.jpg 金地檀府-89-现代简约-餐厅2.jpg

开放式的厨房绝对适合小户型的首选,餐厅区域的设计抛弃掉了以往餐桌的摆放。选择了定制石材做为餐桌简约大气又不简单。完全符合业主整体的格调。

金地檀府-89-现代简约-次卧室.jpg 金地檀府-89-现代简约-主卧室.jpg

做为睡眠休息的空间,在颜色没有过多的使用亮丽的色彩而是选择了中性色彩搭配柔软舒适皮质的大床。床头以墙板搭配金属信条做出搭配。整体衣柜全部使用定制透明玻璃加入灯光烘托。更加合理化的达到了业主需求。

金地檀府-89-现代简约-卫生间.jpg

白色仿理石纹理的墙砖分割上下整体通铺使得卫生间更加靓丽。定制的双手盆更加符合了多人同时使用卫生间的需要。为了能让卫生间更加干净整洁搭配了浴屏做到了干湿分离。

金地檀府-89-现代简约-厨房.jpg

户型虽小开放式厨房绝对不可以少。所以厨房做成了开放式,浅白色仿大理石文理瓷砖搭配上原木是的板橱柜完全和客餐厅极其呼应,整体空间完全融入到一起。

金地檀府-89-现代简约-平面.jpg

案例设计师

林凤设计师

设计师:林凤设计师

从业时间:10年

设计理念:

预约设计师

算算你家装修多少钱

报名即享丰厚赠品,享半价装修

免费报价
咨询热线:400-656-9909
20190221103704574636.jpg

精品设计案例

20180612134930523248.jpg 服务号二维码.jpg