立即预约 立即预约
免费定制整装家居

免费定制整装家居

一站置家 全程无忧 一省到底
hide.png

当前位置: 首页 > 装修案例效果图 > 华润奉天九里

华润奉天九里 110平 田园风格效果图

收藏
案例风格 田园 案例户型 三居 案例面积 110平米
楼盘名称 华润奉天九里 设计师 林凤设计师 案例类型 改善性住宅

设计理念:本案运用了简约美式的装修风格,其特点家具厚重,用色统一协调,装饰无多余冗杂之感。本案运用米黄色系作为墙面基础,加入清新色系作为点缀,表现整体居家环境的简洁和温馨。

客厅
第1张
第2张
第3张
第4张
第5张
餐厅
第1张
卧室
第1张
卫生间
第1张
厨房
第1张
过廊
第1张
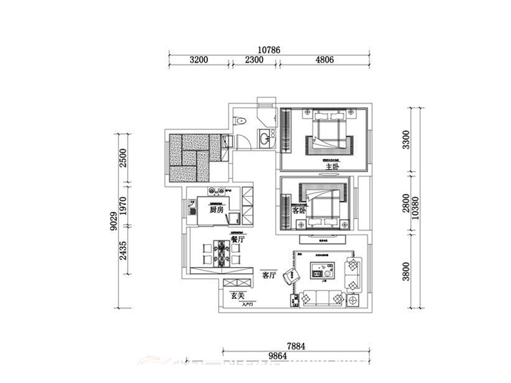
户型图
第1张
  • 案例详情

王硕-奉天九里-110平米-田园风格-客厅 (4).jpg 王硕-奉天九里-110平米-田园风格-客厅.jpg 王硕-奉天九里-110平米-田园风格-客厅1.jpg 王硕-奉天九里-110平米-田园风格-客厅 (3).jpg 王硕-奉天九里-110平米-田园风格-客厅 (2).jpg

客厅空间是会客交流最多的地方,业主朋友很多,也经常聚在一起,所以设计时主要考虑了这一需求。选择了组合沙发.空间.整体空间简洁大方.

王硕-奉天九里-110平米-田园风格-餐厅.jpg

餐厅的设计延续着整个居室的风格,墙壁的壁画和吊灯划分和强调着用餐空间,壁画加重了墙面的颜色,增加了空间层次。墙面,餐盘的造型起到了点睛的作用.

王硕-奉天九里-110平米-田园风格-卧室.jpg

卧室是业主用的最多的地方,卧室设计米色壁纸作床头背景,奠定了一个温馨的基础,搭配红褐色地板,同时也增加了空间的灵动感。

王硕-奉天九里-110平米-田园风格-卫生间.jpg

卫生间设计运用咔色瓷砖和腰线,整个空间统一感极强。白色的洁具为整个空间增加层次感,整体干净整洁。

王硕-奉天九里-110平米-田园风格-厨房.jpg

厨房的设计强调整洁干净,运用米色系,在一定程度上延续了整体风格。墙面用了亚光的瓷砖,增加了空间质感。实木的橱柜,加上花色理石板,使得空间层次丰富,而且方便清理油渍,干净整洁。

王硕-奉天九里-110平米-田园风格-过廊.jpg 王硕-奉天九里-110平米-田园风格-平面.jpg

案例设计师

林凤设计师

设计师:林凤设计师

从业时间:7年

设计理念:专注做最自然的设计。

预约设计师

算算你家装修多少钱

报名即享丰厚赠品,享半价装修

免费报价
咨询热线:400-656-9909
20190221103704574636.jpg

精品设计案例

20180612134930523248.jpg 服务号二维码.jpg