立即预约 立即预约
免费定制整装家居

免费定制整装家居

一站置家 全程无忧 一省到底
hide.png

当前位置: 首页 > 装修案例效果图 > 国瑞城

国瑞城 79平 现代简约风格效果图

收藏
案例风格 现代简约 案例户型 二居 案例面积 79平米
楼盘名称 国瑞城 设计师 林凤设计师 案例类型 改善性住宅

设计理念:本案将田园与美式风格元素相结合 ,可以说是美式乡村混搭,最大化的满足了业主二位心中的最理想画面,从软装角度来出发,深浅色搭配,使二人的二人世界唯美,惬意

客厅
第1张
第2张
第3张
第4张
餐厅
第1张
卫生间
第1张
厨房
第1张
门厅
第1张
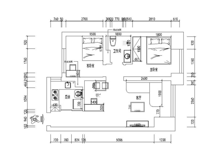
户型图
第1张
  • 案例详情

马晓东-国瑞城79现代-客厅.jpg 马晓东-国瑞城79现代-客厅1.jpg 马晓东-国瑞城79现代-客厅2.jpg 马晓东-国瑞城79现代-客厅3.jpg

想要客厅温馨舒适,首要选择了偏深色系的地板,门系列选择美式木色,沙发也一样运用了男主人提到一定要满足的深色皮质沙发,这些重量系的家具主材定义了深色系 ,接下来墙面壁纸选择浅色硅藻泥,偏绿色和蛋黄色使深色的家具衬托了几分清新,

马晓东-国瑞城79现代-餐厅.jpg

餐厅中最显眼的就是美式的挂盘设计和田园的假窗设计,二者风格相似,所以并不冲突,琉璃花纹理的餐厅灯正好与餐桌位置上下呼应,专属的餐厅区域,专属的装饰,让就餐区成为了花园的感觉

马晓东-国瑞城79现代-卫生间.jpg 马晓东-国瑞城79现代-厨房.jpg 马晓东-国瑞城79现代-门厅.jpg 马晓东-国瑞城79现代-户型图.jpg

案例设计师

林凤设计师

设计师:林凤设计师

从业时间:12年

设计理念:让设计成为艺术,让艺术进入生活。

预约设计师

算算你家装修多少钱

报名即享丰厚赠品,享半价装修

免费报价
咨询热线:400-656-9909
20190221103704574636.jpg

精品设计案例

20180612134930523248.jpg 服务号二维码.jpg