立即预约 立即预约
免费定制整装家居

免费定制整装家居

一站置家 全程无忧 一省到底
hide.png

当前位置: 首页 > 装修案例效果图 > 月星城央华墅

月星城央华墅 129平 现代简约风格效果图

收藏
案例风格 现代简约 案例户型 一居 案例面积 129平米
楼盘名称 月星城央华墅 设计师 刘云静 案例类型 儿童房

设计理念:简约并不代表简单,干净利落是本案的代名词,轻装修重装饰的设计理念贯穿全局,通过软装色彩、灯光、配饰进行整体搭配。

客厅
第1张
第2张
第3张
餐厅
第1张
卧室
第1张
第2张
卫生间
第1张
厨房
第1张
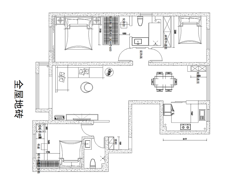
户型图
第1张
月星城央华墅-130平-现代轻奢-首图.jpg 月星城央华墅-130平-现代轻奢-客厅.jpg 月星城央华墅-130平-现代轻奢-客厅1.jpg

本案客厅整体没有复杂的造型,只是在棚面上有一圈边棚,沙发背景墙用蓝灰色乳胶漆调色,电视背景墙用组合柜子的形式来代替背景墙,既有装饰又可以储物。

月星城央华墅-130平-现代轻奢-餐厅.jpg

本案客厅棚面就是简简单单的收了一圈石膏线,墙面一幅简单的、有意境的装饰画来进行点缀,通过垂下来的餐厅吊灯来整体营造用餐的氛围,餐桌选择的是大理石质感的,整体客厅、餐厅形成一个整体。

月星城央华墅-130平-现代轻奢-次卧.jpg 月星城央华墅-130平-现代轻奢-主卧.jpg

女主人不喜欢繁琐的东西,整体衣柜上面都没有吊棚,床头背景墙选择的是橡皮粉的乳胶漆进行点缀。

月星城央华墅-130平-现代轻奢-卫生间.jpg

卫生间采用地砖上墙,浅色系的地砖让整个空间更加温馨。

月星城央华墅-130平-现代轻奢-厨房.jpg

本案是封闭式厨房,基本每天都会做饭,所以选择的封闭式厨房,深灰色的地柜,浅灰色的上柜,看着干净利落好打理。

月星城央华墅-130平-现代轻奢-平面图.jpg

案例设计师

刘云静

设计师:刘云静

从业时间:10年

设计理念:在我的世界里,设计不仅是视觉的艺术,更是情感的传递与文化的融合。

预约设计师

算算你家装修多少钱

报名即享丰厚赠品,享半价装修

免费报价
咨询热线:400-656-9909
20190221103704574636.jpg

精品设计案例

20180612134930523248.jpg 服务号二维码.jpg