立即预约 立即预约
免费定制整装家居

免费定制整装家居

一站置家 全程无忧 一省到底
hide.png

当前位置: 首页 > 装修案例效果图 > 保利达江湾城

保利达江湾城 160平 现代简约风格效果图

收藏
案例风格 现代简约 案例户型 四居 案例面积 160平米
楼盘名称 保利达江湾城 设计师 林凤设计师 案例类型 改善性住宅

设计理念:保利达江湾城 ,保利达江湾城简约现代装修, 现代简约装修效果图。

客厅
第1张
第2张
第3张
餐厅
第1张
卧室
第1张
第2张
卫生间
第1张
厨房
第1张
儿童房
第1张
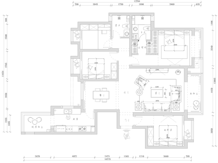
户型图
第1张
S5-王伟力-保利达江湾城160平米-现代风格首图.jpg S5-王伟力-保利达江湾城160平米-现代风格-客厅.jpg S5-王伟力-保利达江湾城160平米-现代风格客厅沙发.jpg

客厅区域比开阔,在沙发背景的设计上做了灰色的墙面漆设计既简单又不失稳重,电视背景的小摆与客灯茶几关联统一,使整个空间更协调。地面采用了灰色的大地砖更具有现代气息。

S5-王伟力-保利达江湾城160平米-现代风格-餐厅.jpg

餐厅比较狭窄餐桌餐桌采用竖向摆放,即增强了过廊的流动性,又使整体空间更饱满。

S5-王伟力-保利达江湾城160平米-现代风格-次卧室.jpg S5-王伟力-保利达江湾城160平米-现代风格-主卧室.jpg

主卧室采用了大面积的灰白色调,衣柜采用了玻璃门与金属的结合略显通透既满足了业主对奢侈品收纳的感官需求又不失现代感。

S5-王伟力-保利达江湾城160平米-现代风格-卫生间.jpg

卫生间深灰色墙砖黑色的洗面盆柜和白色的马桶洗衣机形成鲜明的的对比,整体感即高冷大气。

S5-王伟力-保利达江湾城160平米-现代风格-厨房.jpg

厨房空间采光很好在布局上平行厨房布局双侧同时使用,既满足了厨房空间的容储性又增加了宽敞度。

S5-王伟力-保利达江湾城160平米-现代风格-儿卧.jpg S5-王伟力-保利达江湾城160平米-现代风格-平面_旋转.jpg

案例设计师

林凤设计师

设计师:林凤设计师

从业时间:0年

设计理念:

预约设计师

算算你家装修多少钱

报名即享丰厚赠品,享半价装修

免费报价
咨询热线:400-656-9909
20190221103704574636.jpg

精品设计案例

20180612134930523248.jpg 服务号二维码.jpg