立即预约 立即预约
免费定制整装家居

免费定制整装家居

一站置家 全程无忧 一省到底
hide.png

当前位置: 首页 > 装修案例效果图 > 远洋仰山

远洋仰山 100平 轻奢风格效果图

收藏
案例风格 轻奢 案例户型 三居 案例面积 100平米
楼盘名称 远洋仰山 设计师 林凤设计师 案例类型 改善性住宅

设计理念:本案采用黑白灰元素的轻奢风格,简洁硬朗的线条使空间层次分明,金色与黑灰的搭配营造出低调奢华的空间氛围,在看似简洁朴素的外表之下却常常折射出一种隐藏的贵族气质。

客厅
第1张
第2张
餐厅
第1张
卧室
第1张
第2张
第3张
卫生间
第1张
厨房
第1张
阳台
第1张
门厅
第1张
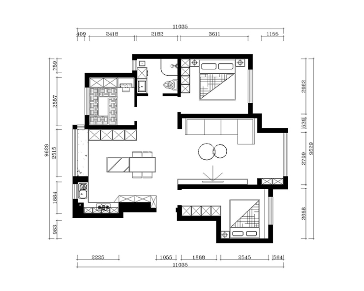
户型图
第1张
  • 案例详情

S7-张佳月-远洋仰山-100平-黑白灰轻奢-客厅1.jpg S7-张佳月-远洋仰山-100平-黑白灰轻奢-客厅2.jpg

远洋仰山100平三室两厅黑白灰轻奢风格林凤装饰的客厅墙面白色为主,搭配浅灰色的软装和深灰色的地砖,墙面的蓝色和深色木栏与地板相呼应,使整体色彩统一,轻奢风格的装饰加以点缀,线条的堆叠与交错,实现空间的凹凸感,提升内部的质感。

S7-张佳月-远洋仰山-100平-黑白灰轻奢-餐厅.jpg

远洋仰山100平三室两厅黑白灰轻奢风格林凤装饰的餐厅采用原木色的餐桌与白色大理石洗碗台的碰撞,使餐厅的空间多变、灵动、白色台面与黑色柜体使整个空间分区更加明显,餐桌上的装饰吊灯的点缀使餐厅的空间生长出独特的姿态。

S7-张佳月-远洋仰山-100平-黑白灰轻奢-次卧1.jpg S7-张佳月-远洋仰山-100平-黑白灰轻奢-次卧2.jpg S7-张佳月-远洋仰山-100平-黑白灰轻奢-主卧.jpg

【主卧室说明】卧室的设计更多的是以美观为主,深蓝色的墙面与搭配蓝色的软装,轻奢风格的装饰画,白色的衣柜呼应着原木色的地板,大面积的浅色调与灰色的墙面又碰撞出时尚的美感。【次卧室说明】客卧的设计上更多的是为了实用性,整体浅色调的设计使空间更加明亮清新,榻榻米的设计满足了工作休息的日常生活所需。

S7-张佳月-远洋仰山-100平-黑白灰轻奢-卫生间.jpg

远洋仰山100平三室两厅黑白灰轻奢风格林凤装饰的卫生间深棕色瓷砖选着搭配简单的洁具装饰使得狭小卫浴空间,更加的高端,多了更多了灵动,简单的空间划分、统一色调也使视觉空间得以最大的延伸。

S7-张佳月-远洋仰山-100平-黑白灰轻奢-厨房.jpg

远洋仰山100平三室两厅黑白灰轻奢风格林凤装饰的开放厨房的设计,与客厅同色的地砖使厨房的视觉空间得以延伸,简洁的白色柜体选择与瓷砖的搭配也使厨房空间更加趣味和生活化。

S7-张佳月-远洋仰山-100平-黑白灰轻奢-生活阳台.jpg

远洋仰山100平三室两厅黑白灰轻奢风格林凤装饰的生活阳台

S7-张佳月-远洋仰山-100平-黑白灰轻奢-玄关.jpg

远洋仰山100平三室两厅黑白灰轻奢风格林凤装饰的玄关

S7-张佳月-远洋仰山-100平-黑白灰轻奢-平面图.jpg

户型图

案例设计师

林凤设计师

设计师:林凤设计师

从业时间:0年

设计理念:

预约设计师

算算你家装修多少钱

报名即享丰厚赠品,享半价装修

免费报价
咨询热线:400-656-9909
20190221103704574636.jpg

精品设计案例

20180612134930523248.jpg 服务号二维码.jpg