立即预约 立即预约
免费定制整装家居

免费定制整装家居

一站置家 全程无忧 一省到底
hide.png

当前位置: 首页 > 装修案例效果图 > 华润紫云府

华润紫云府 75平 新中式风格效果图

收藏
案例风格 新中式 案例户型 二居 案例面积 75平米
楼盘名称 华润紫云府 设计师 魏东超 案例类型 改善性住宅

设计理念:中式风格适合性格沉稳、喜欢中国传统文化的人。新中式风格不是纯粹的传统文化元素的简单叠加,而是通过对传统文化的认识,注入中式的风雅意境,从而使空间散发清雅含蓄、端庄典雅。

客厅
第1张
第2张
第3张
卧室
第1张
第2张
第3张
卫生间
第1张
厨房
第1张
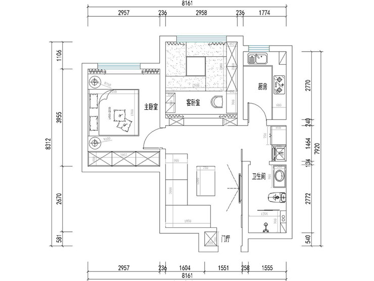
户型图
第1张
  • 案例详情

华润紫云府-75平-现代中式风格-客厅 (2).jpg 华润紫云府-75平-现代中式风格-客厅.jpg 华润紫云府-75平-现代中式风格-首图.jpg

古色古香背景墙、地毯、吊灯的装饰融合了时尚与典雅,极具中国风韵味,吊顶采用硬朗简洁的直线条装饰,使空间更具有层次感。宽敞明亮的窗户,显得整个客厅简约大气、舒畅通透。绿植的点缀又为客厅增添了一分自然气息。气势恢宏的电视背景墙装饰也体现出主人高端大气的气质。

华润紫云府-75平-现代中式风格-榻榻米 (3).jpg 华润紫云府-75平-现代中式风格-榻榻米.jpg 华润紫云府-75平-现代中式风格-卧室.jpg

卧室营造出一种追求时尚而不浮躁,庄重典雅而不乏轻松的浪漫的感觉,卧室整体装饰看似简单,实则韵味无穷,是一个极富中国浪漫情调的生活空间,卧室的灯饰极具古典韵味,非常符合主人追求高尚典雅的文化底蕴的要求。

华润紫云府-75平-现代中式风格-卫生间.jpg 华润紫云府-75平-现代中式风格·-厨房.jpg

简约大气,体现出业主生活品位,满足了女主人对烹煮等功能的需求。

华润紫云府-75平-现代中式风格-户型图.jpg

案例设计师

魏东超

设计师:魏东超

从业时间:14年

设计理念:在有限的空间里创造无限的可能

预约设计师

算算你家装修多少钱

报名即享丰厚赠品,享半价装修

免费报价
咨询热线:400-656-9909
20190221103704574636.jpg

精品设计案例

20180612134930523248.jpg 服务号二维码.jpg