立即预约 立即预约
免费定制整装家居

免费定制整装家居

一站置家 全程无忧 一省到底
hide.png

当前位置: 首页 > 装修案例效果图 > 阳光一百凤凰湾

阳光一百凤凰湾 110平 现代简约风格效果图

收藏
案例风格 现代简约 案例户型 三居 案例面积 110平米
楼盘名称 阳光一百凤凰湾 设计师 林凤设计师 案例类型 改善性住宅

设计理念:本案是北欧风格,干净的色彩,搭配原木材质给人以温馨安逸的感觉,合理规划收纳和动线,让业主体验到屋内的舒适度。

客厅
第1张
第2张
第3张
第4张
餐厅
第1张
第2张
卧室
第1张
卫生间
第1张
第2张
第3张
衣帽间
第1张
门厅
第1张
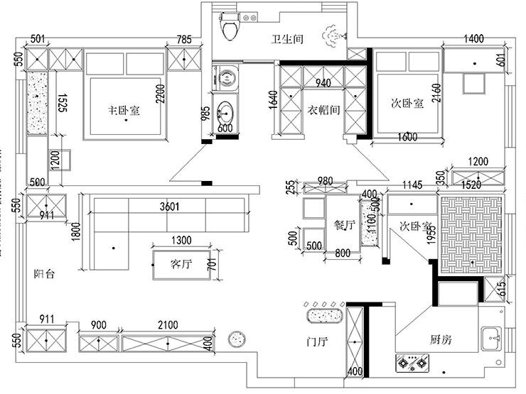
户型图
第1张
  • 案例详情

阳光一百凤凰湾-110-北欧风格-电视背景.jpg 阳光一百凤凰湾-110-北欧风格-客厅.jpg 阳光一百凤凰湾-110-北欧风格-客厅1.jpg 阳光一百凤凰湾-110-北欧风格-客厅2.jpg

阳光一百凤凰湾110平三室两厅现代风格林凤装饰的客厅整体色系以白色搭配原木色为主,整体空间安逸明亮,地面暖灰色,墙面和碰面以白色为主,搭配上原木的家具的和木质灯具显得屋内格外的温馨。

阳光一百凤凰湾-110-北欧风格-餐厅.jpg 阳光一百凤凰湾-110-北欧风格-餐厅1.jpg

阳光一百凤凰湾110平三室两厅现代风格林凤装饰的餐厅空间比较狭小,所以将餐桌靠墙放置,搭配镂空的餐椅,让整体空间更轻挑,不闷。旁边的镂空木柱让整体空间更通透。

阳光一百凤凰湾-110-北欧风格-主卧室1.jpg

阳光一百凤凰湾110平三室两厅现代风格林凤装饰的主卧室舒适的原木色家具给人安逸的体验感,墙面整体留白,布艺窗帘盒床单上采用淡淡的海蓝色,清新,干净。

阳光一百凤凰湾-110-北欧风格-卫生间.jpg 阳光一百凤凰湾-110-北欧风格-卫生间1.jpg 阳光一百凤凰湾-110-北欧风格-卫生间2.jpg

阳光一百凤凰湾110平三室两厅现代风格林凤装饰的卫生间整体以爵士白瓷砖为主,搭配上木色的浴室柜体让整体空间和客厅融为一体,很干净。

阳光一百凤凰湾-110-北欧风格-衣帽间.jpg

阳光一百凤凰湾110平三室两厅现代风格林凤装饰的衣帽间

阳光一百凤凰湾-110-北欧风格-门厅.jpg

阳光一百凤凰湾110平三室两厅现代风格林凤装饰的玄关

阳光一百凤凰湾-110-北欧风格-平面图.jpg

户型图

案例设计师

林凤设计师

设计师:林凤设计师

从业时间:5年

设计理念:经验和习惯的沉淀,时尚与美观的结合

预约设计师

算算你家装修多少钱

报名即享丰厚赠品,享半价装修

免费报价
咨询热线:400-656-9909
20190221103704574636.jpg

精品设计案例

20180612134930523248.jpg 服务号二维码.jpg