立即预约 立即预约
免费定制整装家居

免费定制整装家居

一站置家 全程无忧 一省到底
hide.png

当前位置: 首页 > 装修案例效果图 > 华润万象府

华润万象府 178平 轻奢风格效果图

收藏
案例风格 轻奢 案例户型 三居 案例面积 178平米
楼盘名称 华润万象府 设计师 林凤设计师 案例类型 改善性住宅

设计理念:本方案以现代轻奢的风格为主题,金属线条来凸显质感,从而彰显了一种高品质的生活方式,让整个家变得更温馨,舒适。

客厅
第1张
第2张
第3张
第4张
第5张
第6张
餐厅
第1张
第2张
卧室
第1张
卫生间
第1张
第2张
厨房
第1张
过廊
第1张
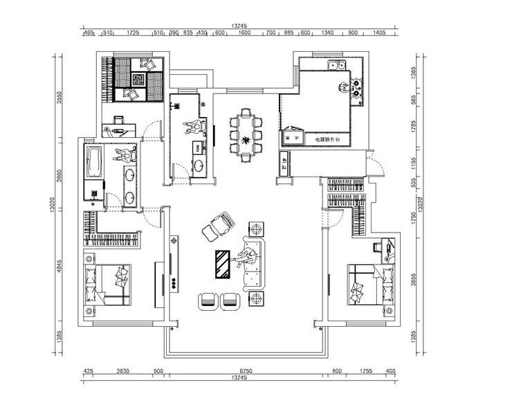
户型图
第1张
  • 案例详情

华润万象府  178平 现代轻奢风格客厅1.jpg 华润万象府  178平 现代轻奢风格客厅2.jpg 华润万象府  178平 现代轻奢风格客厅3.jpg 华润万象府  178平 现代轻奢风格客厅5.jpg 华润万象府  178平 现代轻奢风格客厅4.jpg 华润万象府  178平 现代轻奢风格首图.jpg

华润万象府178平三室两厅现代轻奢风格林凤装饰的客厅以简约舒适的灰色沙发作为主角,与玻璃茶几相呼应在质感、触感上形成强烈的对比,用冷色和暖色搭配,不局限于单一色调。通过金色金属线条和背景墙的块面,形成线面呼应。

华润万象府  178平 现代轻奢风格餐厅.jpg 华润万象府  178平 现代轻奢风格客餐厅.jpg

华润万象府178平三室两厅现代轻奢风格林凤装饰的餐厅设置在窗旁,光线也是很明亮通透,摆放一张黑色的理石餐桌,搭配几张深色的椅子,不土豪,不张扬。

华润万象府  178平 现代轻奢风格卧室.jpg

华润万象府178平三室两厅现代轻奢风格林凤装饰的主卧室采用套房的设计理念,实用大气,温馨自然,让整个空间感受更有档次。

华润万象府  178平 现代轻奢风格卫生间.jpg 华润万象府  178平 现代轻奢风格卫生间2.jpg

华润万象府178平三室两厅现代轻奢风格林凤装饰的卫生间整体空间比较大,采用双盆浴室柜,两个人可以一起洗漱,好看又实用。白色围边的浴镜反射扩大空间,浴缸旁的玻璃使整个空间高大上起来。

华润万象府  178平 现代轻奢风格厨房.jpg

华润万象府178平三室两厅现代轻奢风格林凤装饰的厨房橱柜选用白色的门板,搭配灰色的地砖,相对来说还是比较简约的,厨房转角处设计操作台,主要的一些烤箱等电器都在那边,空间运用的合理。

华润万象府  178平 现代轻奢风格过廊.jpg

华润万象府178平三室两厅现代轻奢风格林凤装饰的过廊

华润万象府  178平 现代轻奢风格平面图.jpg

户型图

案例设计师

林凤设计师

设计师:林凤设计师

从业时间:10年

设计理念:用心观察生活,感悟人生真谛,让设计与生活互动。

预约设计师

算算你家装修多少钱

报名即享丰厚赠品,享半价装修

免费报价
咨询热线:400-656-9909
20190221103704574636.jpg

精品设计案例

20180612134930523248.jpg 服务号二维码.jpg