立即预约 立即预约
免费定制整装家居

免费定制整装家居

一站置家 全程无忧 一省到底
hide.png

当前位置: 首页 > 装修案例效果图 > 恒大御峰

恒大御峰 215平 港式风格效果图

收藏
案例风格 港式 案例户型 四居 案例面积 215平米
楼盘名称 恒大御峰 设计师 林凤装饰全案设计师 案例类型 改善性住宅

设计理念:本案例为现代简约风格,业主人口结构三口之家,整体塑造以简单的单一线型元素为主导,辅助点、线、面结合展开的搭配手法,配合理石与木制的不同材质的体现。最终实现业主对此住宅的使用需求。

客厅
第1张
第2张
餐厅
第1张
第2张
卧室
第1张
卫生间
第1张
厨房
第1张
过廊
第1张
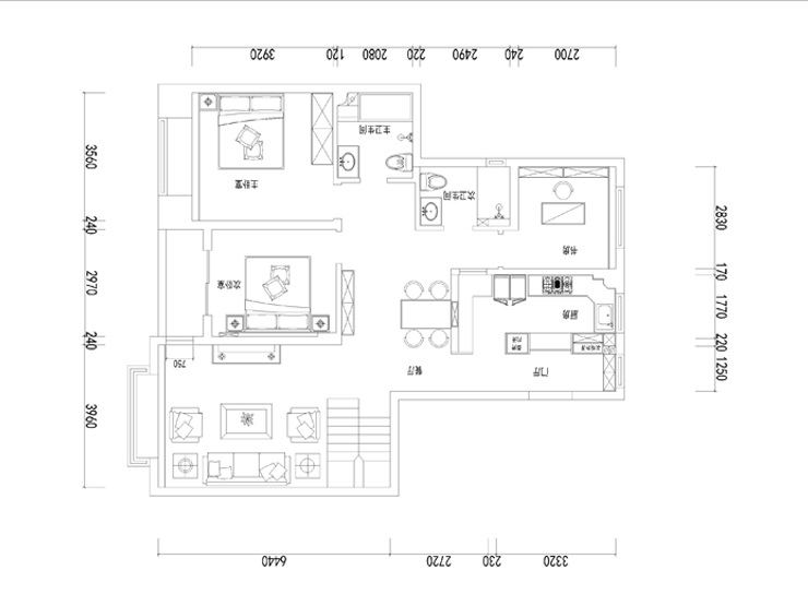
户型图
第1张
  • 案例详情

S2-李晓亮-恒大御峰-215-港式-客厅区域.jpg S2-李晓亮-恒大御峰-215-港式-客厅区域2.jpg

恒大御峰215平四室两厅港式风格林凤装饰的客厅以灰色调作为主体色调,并没有造型,墙板和理石结合搭配出背景墙,局部装饰画和灯光点缀室内氛围。

S2-李晓亮-恒大御峰-215-港式-餐厅区域1.jpg S2-李晓亮-恒大御峰-215-港式-餐厅区域2.jpg

恒大御峰215平四室两厅港式风格林凤装饰的餐厅与客厅呼应统一,木质的造型增加整体质感,白色的吧台及白色定制式整体厨房,使整个空间更加宽敞,金属边框玻璃造型的搭配能起到与白色物品的对比效果。

S2-李晓亮-恒大御峰-215-港式-卧室区域1.jpg

恒大御峰215平四室两厅港式风格林凤装饰的卧室二楼卧室是主人最放松的地方,以榻榻米配以装饰格,再加上软配饰的烘托使整个空间更加有生活格调。

S2-李晓亮-恒大御峰-215-港式-卫生间区域1.jpg

恒大御峰215平四室两厅港式风格林凤装饰的主卫的墙面和地面采用纹理明显的瓷砖,颜色成熟稳重的同时又不失品位。

S2-李晓亮-恒大御峰-215-港式-厨房区域1.jpg

恒大御峰215平四室两厅港式风格林凤装饰的厨房选择开敞式白色整体定制,干净整洁的同时又将空间在视觉营造更加通透。多功能的操作台、内嵌家电的高柜区以及大量的储物空间,让喜爱烹饪的业主对厨房更加的热爱。

S2-李晓亮-恒大御峰-215-港式-走廊区域1.jpg

恒大御峰215平四室两厅港式风格林凤装饰的走廊

S2-李晓亮-恒大御峰-215-港式-平面图.jpg

案例设计师

林凤装饰全案设计师

设计师:林凤装饰全案设计师

从业时间:5年

设计理念:生活是创意的来源,创意源于文化,创意源于自己

预约设计师

算算你家装修多少钱

报名即享丰厚赠品,享半价装修

免费报价
咨询热线:400-656-9909
20190221103704574636.jpg

精品设计案例

20180612134930523248.jpg 服务号二维码.jpg