立即预约 立即预约
免费定制整装家居

免费定制整装家居

一站置家 全程无忧 一省到底
hide.png

当前位置: 首页 > 装修案例效果图 > 中海康城

中海康城 125平 现代简约风格效果图

收藏
案例风格 现代简约 案例户型 三居 案例面积 125平米
楼盘名称 中海康城 设计师 林凤设计师 案例类型 改善性住宅

设计理念:灰色调理性而克制,家具沉稳,黑色温情复古,这套住宅就像一个外表静默淡然,内里热情跳跃的人,既满足了现代都市生活方式,又拥有优雅舒适和意蕴。

客厅
第1张
第2张
餐厅
第1张
卧室
第1张
第2张
卫生间
第1张
第2张
厨房
第1张
儿童房
第1张
门厅
第1张
过廊
第1张
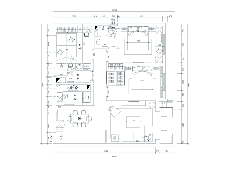
户型图
第1张
  • 案例详情

中海康城-125平-现代风格-客厅阳台.jpg 中海康城-125平-现代风格-首图.jpg

推开门,金属色的屏风和交相呼应的灯具. 现代新贵的符号,穿过过道往内探索,是公共核心区域客餐厅。不同于起居室的轻松愉悦,在这里打造了一个更具仪式感的生活空间,沉稳静谧,灰色贯穿始终,灰色与灰蓝色Baxter的沙发围合起整个空间,家具款式简洁,突出舒适感。

中海康城-125平-现代风格-餐厅.jpg

中海康城125平三室两厅现代风格林凤装饰餐厅

中海康城-125平-现代风格-榻榻米.jpg 中海康城-125平-现代风格-主卧.jpg

【榻榻米卧室】多功能榻榻米,配合书柜,现代元素的运用,削弱了地榻的 憨厚之感,打造了茶室,会客,休闲,习字,多功能室,体现了主人,热衷于自己,高雅精致的生活兴趣。。。、。。

中海康城-125平-现代风格-次卫.jpg 中海康城-125平-现代风格-主卫.jpg

中海康城125平三室两厅现代风格林凤装饰卫生间

中海康城-125平-现代风格-厨房.jpg

中海康城125平三室两厅现代风格林凤装饰厨房

中海康城-125平-现代风格-儿卧.jpg

中海康城125平三室两厅现代风格林凤装饰儿童房

中海康城-125平-现代风格-门过厅.jpg

中海康城125平三室两厅现代风格林凤装饰玄关

中海康城-125平-现代风格-过厅.jpg

中海康城125平三室两厅现代风格林凤装饰过廊

中海康城-125平-现代风格-平面图.jpg

案例设计师

林凤设计师

设计师:林凤设计师

从业时间:0年

设计理念:

预约设计师

算算你家装修多少钱

报名即享丰厚赠品,享半价装修

免费报价
咨询热线:400-656-9909
20190221103704574636.jpg

精品设计案例

20180612134930523248.jpg 服务号二维码.jpg