立即预约 立即预约
免费定制整装家居

免费定制整装家居

一站置家 全程无忧 一省到底
hide.png

当前位置: 首页 > 装修案例效果图 > 金辉优步学府

金辉优步学府 120平 现代简约风格效果图

收藏
案例风格 现代简约 案例户型 三居 案例面积 120平米
楼盘名称 金辉优步学府 设计师 菅垚 案例类型 改善性住宅

设计理念:本案设计在满足整个空间效果的前提现又结合实用.做到极简又不失档次!,充分了解业主,规划最适合的方案才是最完美的方案。

客厅
第1张
第2张
第3张
餐厅
第1张
第2张
卧室
第1张
第2张
卫生间
第1张
第2张
厨房
第1张
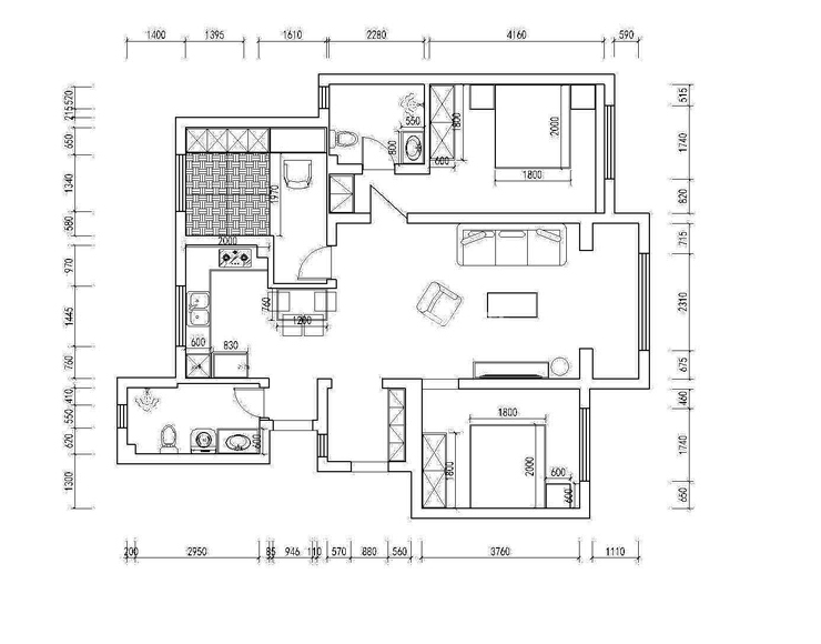
户型图
第1张
  • 案例详情

喜悦风华--120平--现代极简--客厅.jpg 喜悦风华--120平--现代极简--沙发背景墙.jpg 喜悦风华--120平--现代极简--首图.jpg

金辉优步学府120平三室两厅现代风格林凤装饰的客厅以灰色的地板作为主色,采用了灰色与木色的现代风格家具作为软装主题,搭配灰色的布艺沙发,再加上黄色的窗帘搭配使整体的空间活力感特别强,令人心情舒畅!灰色的背景墙去繁留简,运用木色电视柜点缀恰大好处,简约而不简单!

喜悦风华--120平--现代极简--餐厅.jpg 喜悦风华--120平--现代极简--餐厅1.jpg

金辉优步学府120平三室两厅现代风格林凤装饰的餐厅的空间不是特别复杂,开放式的厨房,餐厅墙板采用与厨房柜门相同材质的墙板与厨房形成分而不散的中体效果,空间感特别强,也让烹饪的空间大一些,也使做饭的人和用餐的人互相有个交流,灯光的颜色和白色材质的颜色相呼应,整体感觉简单大方又不失档次的感觉!

喜悦风华--120平--现代极简--次卧.jpg 喜悦风华--120平--现代极简--主卧.jpg

【主卧室说明】卧室采用的暖色调和窗帘的颜色温馨素雅相呼应,榻床的颜色和地板形成了很好的呼应,墙上的是整个空间的灵魂,有画龙点睛的效果,不论是色彩还是质感都是一流搭配!

喜悦风华--120平--现代极简--卫生间.jpg 喜悦风华--120平--现代极简--卫生间1.jpg

金辉优步学府120平三室两厅现代风格林凤装饰的卫生间选用了当下比较流行的元素,灰色的墙砖深浅搭配,勾绘出清晰的层次感,选用黑色手盆使整个空间有鲜明的对比!

喜悦风华--120平--现代极简--厨房.jpg

金辉优步学府120平三室两厅现代风格林凤装饰的厨房的橱柜整体色调选择了暖色系,原木色橱柜搭配哑光瓷砖,既温馨又舒服,厨房还采用了一个百叶帘设计,既遮挡了强烈的光线又起到私密性设计。

喜悦风华--120平--现代极简--平面图.jpg

案例设计师

菅垚

设计师:菅垚

从业时间:11年

设计理念:没有最好的方案,只有最适合的方案

预约设计师

算算你家装修多少钱

报名即享丰厚赠品,享半价装修

免费报价
咨询热线:400-656-9909
20190221103704574636.jpg

精品设计案例

20180612134930523248.jpg 服务号二维码.jpg