立即预约 立即预约
免费定制整装家居

免费定制整装家居

一站置家 全程无忧 一省到底
hide.png

当前位置: 首页 > 装修案例效果图 > 万科新里程

万科新里程 135平 现代简约风格效果图

收藏
案例风格 现代简约 案例户型 三居 案例面积 135平米
楼盘名称 万科新里程 设计师 林凤设计师 案例类型 改善性住宅

设计理念:通过与房主的沟通和了解,知晓客户喜欢舒适、温馨。根据客户的实际使用要求,所以我选择现代风格作为本案的主轴。

客厅
第1张
第2张
第3张
餐厅
第1张
卧室
第1张
第2张
卫生间
第1张
厨房
第1张
过廊
第1张
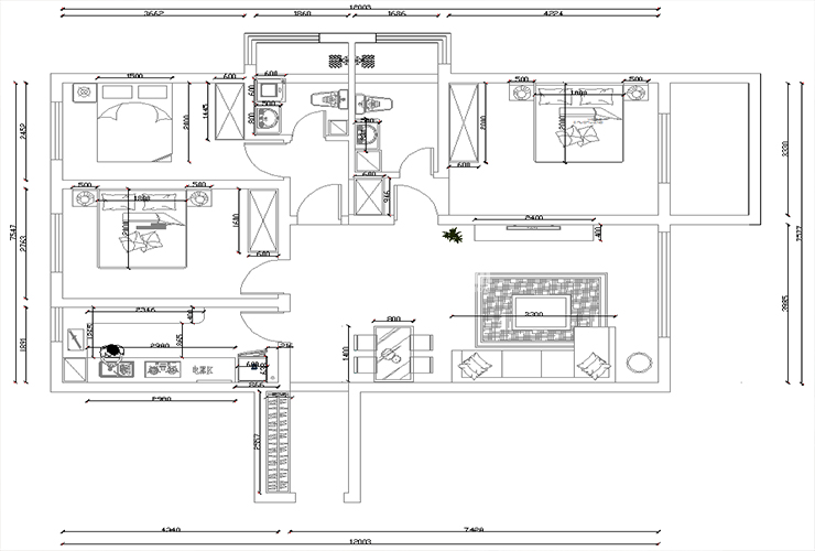
户型图
第1张
  • 案例详情

万科新里程-135平-现代风格-首图.jpg 万科新里程-135平-现代风格-客厅1.jpg 万科新里程-135平-现代风格-客厅2.jpg

万科新里程135平三室两厅现代风格林凤装饰的客户老两口属于养老式改善性住房,所以根据我的建议客厅采用地板,地板即对小孩和老人的使用空间的舒适度大大提高又在供暖前期和后期的温度保障。简单的直线边棚,无虚光,简洁的同时不会显得特别单调。

万科新里程-135平-现代风格-餐厅1.jpg

万科新里程135平三室两厅现代风格林凤装饰的餐厅的颜色搭配由客厅延伸出来,让整个空间看起来更加的大。餐桌背景墙使用简单的石膏线圈框,让整个餐厅温馨起来,增加主人就餐的食欲且增加餐厅二次采光。

万科新里程-135平-现代风格-卧室1.jpg 万科新里程-135平-现代风格-卧室2.jpg

万科新里程135平三室两厅现代风格林凤装饰的卧室作为睡眠、休息的地方。床与家具选用了白色和原木色,让卧室看起来更加的舒服,让主人在休息的时候更加的舒心,主卧室门后打上相应的柜体,增加储存空间的同时又增加了实用性。

万科新里程-135平-现代风格-卫生间.jpg

万科新里程135平三室两厅现代风格林凤装饰的卫生间选用暖色的地砖和墙砖,使用AB版的砖使得空间即干净又整洁,相呼应的原木色浴室柜,使得空间整齐大气。

万科新里程-135平-现代风格-厨房.jpg

万科新里程135平三室两厅现代风格林凤装饰的厨房在颜色上以白色柜体为主,没有华丽的装饰装点,实木的橱柜设计,流利的线条配上大理石的台面,让整体显得简单雅素。

万科新里程-135平-现代风格-过廊.jpg

万科新里程135平三室两厅现代风格林凤装饰的过廊

万科新里程-135平-现代风格-平面图.jpg

案例设计师

林凤设计师

设计师:林凤设计师

从业时间:7年

设计理念:设计源于生活,生活映与本性

预约设计师

算算你家装修多少钱

报名即享丰厚赠品,享半价装修

免费报价
咨询热线:400-656-9909
20190221103704574636.jpg

精品设计案例

20180612134930523248.jpg 服务号二维码.jpg