立即预约 立即预约
免费定制整装家居

免费定制整装家居

一站置家 全程无忧 一省到底
hide.png

当前位置: 首页 > 装修案例效果图 > 浦江御品

浦江御品 140平 轻奢风格效果图

收藏
案例风格 轻奢 案例户型 二居 案例面积 140平米
楼盘名称 浦江御品 设计师 林凤设计师 案例类型 改善性住宅

设计理念:项目位置位于浑河以南,属于河景房。因楼本身的固有的框架限制,设计师利用空间宽度,从结构上对空间进行纵向延展,规划出不同功能空间。矩阵布局的辅助照明光源与空间的块面形成呼应。

客厅
第1张
第2张
第3张
餐厅
第1张
第2张
第3张
卧室
第1张
卫生间
第1张
厨房
第1张
书房
第1张
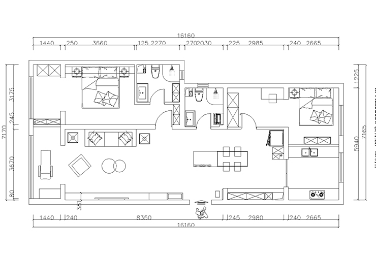
户型图
第1张
  • 案例详情

浦江御品-140平-现代轻奢风格-客厅 2.jpg 浦江御品-140平-现代轻奢风格-首图.jpg 浦江御品-140平-现代轻奢风格-客厅 3.jpg

浦江御品140平2居室现代轻奢风格林凤装饰的客厅通过布置,浅色木纹,撞色的搭配在与使用者互动的同时又界定了空间的使用方式。每一处简单的造型都会在错综复杂的空间留下不同印记,这让人们明确了将会如何使用这个空间。

浦江御品-140平-现代轻奢风格-餐厅.jpg 浦江御品-140平-现代轻奢风格-餐厅2.jpg 浦江御品-140平-现代轻奢风格-餐厅3.jpg

浦江御品140平2居室现代轻奢风格林凤装饰的餐厅部分通过中岛把玄关和餐桌的区域划分出来,中岛及时玄关也是操作空间。

浦江御品-140平-现代轻奢风格-卧室.jpg

浦江御品140平2居室现代轻奢风格林凤装饰的卧室以暖色为主 采用辅助光源把整个空间的做出氛围感,让空间温馨舒适。

浦江御品-140平-现代轻奢风格-卫生间.jpg

浦江御品140平2居室现代轻奢风格林凤装饰的卫生间地面与墙面采用灰色釉面瓷砖设计,使整体得以协调,卫生间以干湿分离的形式展。

浦江御品-140平-现代轻奢风格-厨房.jpg

浦江御品140平2居室现代轻奢风格林凤装饰的厨房采用中西厨的设计形式 把油烟分离,中厨做中餐,西厨做西餐。很好的增加厨房的实用性。

浦江御品-140平-现代轻奢风格-书房.jpg

浦江御品140平2居室现代轻奢风格林凤装饰的书房

浦江御品-140平-现代轻奢风格-平面布局图.jpg

案例设计师

林凤设计师

设计师:林凤设计师

从业时间:8年

设计理念:设计界的一股清流,设计走心最重要。

预约设计师

算算你家装修多少钱

报名即享丰厚赠品,享半价装修

免费报价
咨询热线:400-656-9909
20190221103704574636.jpg

精品设计案例

20180612134930523248.jpg 服务号二维码.jpg