立即预约 立即预约
免费定制整装家居

免费定制整装家居

一站置家 全程无忧 一省到底
hide.png

当前位置: 首页 > 装修案例效果图 > 华润二十四城

华润二十四城 112平 轻奢风格效果图

收藏
案例风格 轻奢 案例户型 二居 案例面积 112平米
楼盘名称 华润二十四城 设计师 吴勇 案例类型 改善性住宅

设计理念:本案的装修风格属于现代轻奢风格,现代轻奢风格设计理念表温馨舒适,自然的原木色调使居室充满休闲的氛围,是快节奏都市生活的休恬的港湾居室色彩主调为暖色,体现时代特征为主,没有过分的装饰,加上金属质感的点缀,简洁的造型、纯洁的质地、精细的工艺,简洁而不失温馨。简约和实用,但又富有朝气的生活气息下面通过各个居室的现代轻奢设计说明,具体理解一下现代轻奢风格。

客厅
第1张
第2张
第3张
第4张
第5张
餐厅
第1张
第2张
卧室
第1张
卫生间
第1张
厨房
第1张
过廊
第1张
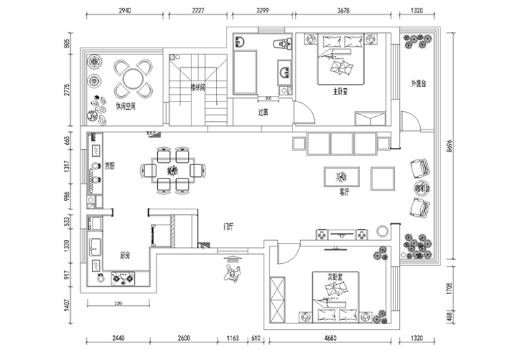
户型图
第1张
第2张
  • 案例详情

华润二十四城-112平-现代轻奢-二楼.jpg 华润二十四城-112平-现代轻奢-二楼大厅.jpg 华润二十四城-112平-现代轻奢-客厅.jpg 华润二十四城-112平-现代轻奢-二楼一角.jpg 华润二十四城-112平-现代轻奢-首图.jpg

华润二十四城112平2居室现代轻奢风格林凤装饰的客厅主要作用是满足客户生活起居,棚上的造型使客厅,餐厅区域有所区分,家具上选择了浅色的皮艺沙发,蓝色的配饰作为点缀,金属的茶几,背景墙采用了灰色软包搭配金属边框,配上白色烤漆的电视柜,显得简单大方,主要目的就是把现代风格的一些特点体现出来。

华润二十四城-112平-现代轻奢-餐厅.jpg 华润二十四城-112平-现代轻奢-餐厅2.jpg

华润二十四城112平2居室现代轻奢风格林凤装饰的餐厅区爵士白的餐桌,搭配浅白色和蓝色的餐椅,吊灯与餐桌餐椅形成一个空间,整体与客厅空间相呼应,色彩统一,协调一致。

华润二十四城-112平-现代轻奢-主卧.jpg

华润二十四城112平2居室现代轻奢风格林凤装饰的卧室是居家休息最重要的区域,所以实用性和实用率都是非常重要的。卧室整体明亮通透,床品与窗帘色彩一致,石膏线条床头背景互相呼应,大理石背景墙添加几分暖意打造出一个简洁、舒适的居住空间。

华润二十四城-112平-现代轻奢-卫生间.jpg

华润二十四城112平2居室现代轻奢风格林凤装饰的卫生间墙砖、地砖上整体和谐统一,给人感觉更简洁、舒适、干净的感觉。

华润二十四城-112平-现代轻奢-厨房.jpg

华润二十四城112平2居室现代轻奢风格林凤装饰的厨房选用了L字型的设计及方便了厨房日常行动方便的同时,又满足了日常功能性的需求:增加了储藏空间,更多适应型号的插座,合理的电器摆放。橱柜选择白色烤漆的门板作为装饰也给简洁的厨房增加了亮点,墙砖选择了浅色的大理石和暖色系地砖呼应,使整体风格上倾向于现代轻奢风格。

华润二十四城-112平-现代轻奢-走廊.jpg

华润二十四城112平2居室现代轻奢风格林凤装饰的过廊

华润二十四城-112平-现代轻奢-二楼户型图.jpg 华润二十四城-112平-现代轻奢-一楼户型图.jpg

案例设计师

吴勇

设计师:吴勇

从业时间:11年

设计理念:用抽象的思维去设计形象的事物

预约设计师

算算你家装修多少钱

报名即享丰厚赠品,享半价装修

免费报价
咨询热线:400-656-9909
20190221103704574636.jpg

精品设计案例

20180612134930523248.jpg 服务号二维码.jpg