立即预约 立即预约
免费定制整装家居

免费定制整装家居

一站置家 全程无忧 一省到底
hide.png

当前位置: 首页 > 装修案例效果图 > 中铁梧桐苑

中铁梧桐苑 200平 新中式风格效果图

收藏
案例风格 新中式 案例户型 别墅 案例面积 200平米
楼盘名称 中铁梧桐苑 设计师 林凤设计师 案例类型 改善性住宅

设计理念:本案例定位为现代中式风格。现代的人们对于传统中式元素有了新的追求。于是把中国传统文化中经典元素进行归纳总结,与之搭配现代的装饰材料。使中国风在装修中完美融入空间中。

客厅
第1张
第2张
餐厅
第1张
第2张
卧室
第1张
第2张
第3张
卫生间
第1张
第2张
厨房
第1张
衣帽间
第1张
过廊
第1张
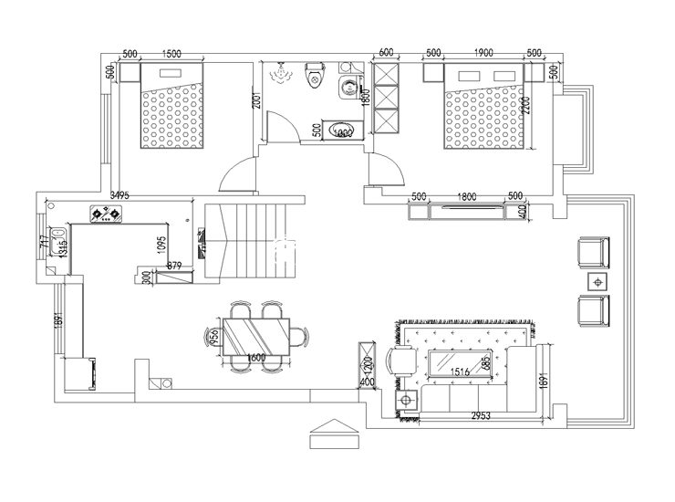
户型图
第1张
  • 案例详情

中铁梧桐苑-200平-现代中式风格-客厅.jpg 中铁梧桐苑-200平-现代中式风格-卧室1-首图.jpg

中铁梧桐苑200平二层洋房新中式风格林凤装饰的客厅我们采用灰色地砖,电视背景才用硬包和中式雕花板进行搭配,棚顶直接用轻钢龙骨石膏板边棚进行归方,这样墙面与天棚交相辉映,从简至繁。在家具才用中式组合沙发经行搭配。在电视旁边摆放鱼缸,有利于风水。

中铁梧桐苑-200平-现代中式风格-餐厅1.jpg 中铁梧桐苑-200平-现代中式风格-餐厅2.jpg

中铁梧桐苑200平二层洋房新中式风格林凤装饰的餐厅空间较大,在餐厅摆放1600长桌,并且在厨房门口对面摆放冰箱,和早餐区。

中铁梧桐苑-200平-现代中式风格-卧室2.jpg 中铁梧桐苑-200平-现代中式风格-卧室1.jpg 中铁梧桐苑-200平-现代中式风格-卧室3.jpg

中铁梧桐苑200平二层洋房新中式风格林凤装饰的主卧空间教大,除了摆放床的位置,还为主卧放置书桌和书柜,给增加了客户阅读和学习的空间,在床对面放置电视,在床前还安置了中式沙发。在通过卫生间的过廊放置了衣帽间,极大的增加出纳空间,为客户合理的摆放衣物。

中铁梧桐苑-200平-现代中式风格-卫生间1.jpg 中铁梧桐苑-200平-现代中式风格-卫生间2.jpg

中铁梧桐苑200平二层洋房新中式风格林凤装饰的卫生间空间较小,但是内部结构比较合理,我们利用暖色系AB版瓷砖来装饰卫生间空间,使卫生间空间在视觉上不会感觉到狭小,反而感觉空间扩大,在卫生间中,我放置洗手台和马桶,淋浴器和浴盆。

中铁梧桐苑-200平-现代中式风格-厨房1.jpg

中铁梧桐苑200平二层洋房新中式风格林凤装饰的厨房的面积空间较大,可以做U行橱柜,在门口靠墙处放置蒸箱和烤箱,把冰箱移到餐厅可以增加橱柜的位置。保证了出纳空间。在橱柜选用了白色的柜板。

中铁梧桐苑-200平-现代中式风格-衣帽间.jpg

中铁梧桐苑200平二层洋房新中式风格林凤装饰的衣帽间

中铁梧桐苑-200平-现代中式风格-走廊.jpg

中铁梧桐苑200平二层洋房新中式风格林凤装饰的过廊

中铁梧桐苑-200平-现代中式风格-布局图.jpg

案例设计师

林凤设计师

设计师:林凤设计师

从业时间:13年

设计理念:一切随心,用心去感悟空间

预约设计师

算算你家装修多少钱

报名即享丰厚赠品,享半价装修

免费报价
咨询热线:400-656-9909
20190221103704574636.jpg

精品设计案例

20180612134930523248.jpg 服务号二维码.jpg