立即预约 立即预约
免费定制整装家居

免费定制整装家居

一站置家 全程无忧 一省到底
hide.png

当前位置: 首页 > 装修案例效果图 > 长岛壹号

长岛壹号 50平 轻奢风格效果图

收藏
案例风格 轻奢 案例户型 一居 案例面积 50平米
楼盘名称 长岛壹号 设计师 林凤装饰设计师 案例类型 改善性住宅

设计理念:长岛壹号50平现代轻奢风格林凤装饰设计围绕LOFT房屋的特性,风格定性为后现代轻奢,整体空间主体色系以灰色白色为主体,搭配爱马仕橙,明黄色形成鲜明的空间对比用色彩划分空间拉伸整体空间大小。

客厅
第1张
第2张
餐厅
第1张
厨房
第1张
书房
第1张
休闲区
第1张
门厅
第1张
过廊
第1张
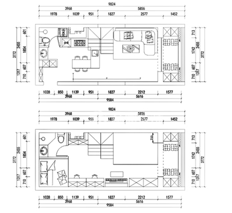
户型图
第1张
  • 案例详情

长岛壹号-50平LOFT-首图.jpg 长岛壹号-50平LOFT-电视背景.jpg

长岛壹号50平1居室现代轻奢loft林凤装饰的客厅部分为整体空间挑空的主要区域 护栏 摒弃了 传统的 钢木或实木的楼梯扶手采用了钢化玻璃作为 扶手 使得整体空间更加通透也起到了防护的作用,沙发背景用爱马仕橙 提升空间的 色彩亮度 。

长岛壹号-50平LOFT-门厅餐厅.jpg

长岛壹号50平1居室现代轻奢loft林凤装饰的餐厅部分,因为一楼空间有限 餐厅部分采用了西式的中岛设计及增加了厨房的储物空间又满足了用餐的目的,整体柜体采用灰蓝色让柜体显得厚重又有档次,迎合了整体空间灰色辅助色的主题。

长岛壹号-50平LOFT-餐厅厨房.jpg

长岛壹号50平1居室现代轻奢loft林凤装饰的厨房空间充分利用了卫生间烟道楼梯下等空间,大面积的高柜配合嵌入式的家用电器增加了空间利用度完全可以满足整家人的日常用餐,色彩上主要用白色的柜体让空间更加干净也与灰蓝色的柜门黑色的台面形成鲜明的对比墙面采用爱马仕橙色瓷砖,增加了空间的完整度。

长岛壹号-50平LOFT-二楼书房.jpg

长岛壹号50平1居室现代轻奢loft林凤装饰的书房

长岛壹号-50平LOFT-二楼储藏.jpg

长岛壹号50平1居室现代轻奢loft林凤装饰的休闲区

长岛壹号-50平LOFT-门厅.jpg

长岛壹号50平1居室现代轻奢loft林凤装饰的玄关

长岛壹号-50平LOFT-客厅过道.jpg

长岛壹号50平1居室现代轻奢loft林凤装饰的过廊

长岛壹号-50平LOFT-平面图.jpg

案例设计师

林凤装饰设计师

设计师:林凤装饰设计师

从业时间:10年

设计理念:专注设计 坚持情怀。

预约设计师

算算你家装修多少钱

报名即享丰厚赠品,享半价装修

免费报价
咨询热线:400-656-9909
20190221103704574636.jpg

精品设计案例

20180612134930523248.jpg 服务号二维码.jpg