立即预约 立即预约
免费定制整装家居

免费定制整装家居

一站置家 全程无忧 一省到底
hide.png

当前位置: 首页 > 装修案例效果图 > 保利紫荆公馆

保利紫荆公馆 135平 美式风格效果图

收藏
案例风格 美式 案例户型 四居 案例面积 135平米
楼盘名称 保利紫荆公馆 设计师 林凤装饰设计师 案例类型 改善性住宅

设计理念:本案为南北通透户型,通风、采光都非常好。且功能区域划分合理。

客厅
第1张
第2张
第3张
餐厅
第1张
卧室
第1张
卫生间
第1张
厨房
第1张
阳台
第1张
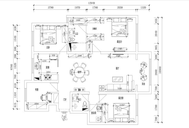
户型图
第1张
  • 案例详情

保利紫荆公馆-135平-简美风格-客厅2.jpg 保利紫荆公馆-135平-简美风格-客厅.jpg 保利紫荆公馆-135平-简美风格-首图.jpg

保利紫荆公馆135平4居室美式风格林凤装饰的客厅的电视背景墙面由天然大理石制作而成,其表面的柔和手感及光泽与美式风格融为一体,低调含蓄,又不失档次。

保利紫荆公馆-135平-简美风格-厅全景.jpg

保利紫荆公馆135平4居室美式风格林凤装饰的餐厅区域空间较大,在与客户多次沟通和建议下,把房主原计划要摆放的圆桌最终改成了更适合中国人就餐习惯的长方形餐桌。这样餐桌两边的墙面距离更加的宽敞,一面墙的酒柜以及餐边柜的组合设计就在这一个小小的改变中得以实现。

保利紫荆公馆-135平-简美风格-主卧室.jpg

保利紫荆公馆135平4居室美式风格林凤装饰的主卧室的空间相对紧凑,但我们一样可以通过配饰的组合以及色彩的搭配来营造出一个温馨浪漫的休息空间。

保利紫荆公馆-135平-简美风格-卫生间.jpg

保利紫荆公馆135平4居室美式风格林凤装饰的卫生间在设计上,通过暖色的大理石纹瓷砖与实木质感的浴柜搭配来提升空间档次,左边淋浴右边泡澡的设计也使得整个空间的使用功能大大提升,合理的利用每一寸空间。

保利紫荆公馆-135平-简美风格-厨房.jpg

保利紫荆公馆135平4居室美式风格林凤装饰的厨房在橱柜的材质以及色彩上与客厅的家具相匹配,这样整体感更加协调、呼应。

保利紫荆公馆-135平-简美风格-客厅阳台.jpg

保利紫荆公馆135平4居室美式风格林凤装饰的阳台

保利紫荆公馆-135平-简美风格-平面图.jpg

案例设计师

林凤装饰设计师

设计师:林凤装饰设计师

从业时间:12年

设计理念:千人千面,设计以人为本才是王道。

预约设计师

算算你家装修多少钱

报名即享丰厚赠品,享半价装修

免费报价
咨询热线:400-656-9909
20190221103704574636.jpg

精品设计案例

20180612134930523248.jpg 服务号二维码.jpg