立即预约 立即预约
免费定制整装家居

免费定制整装家居

一站置家 全程无忧 一省到底
hide.png

当前位置: 首页 > 装修案例效果图 > 金地左岸

金地左岸 87平 现代简约风格效果图

收藏
案例风格 现代简约 案例户型 二居 案例面积 87平米
楼盘名称 金地左岸 设计师 林凤装饰设计师 案例类型 改善性住宅

设计理念:金地左岸87平2居室林凤装饰的设计以实用美观为主题。整体大色调为浅色,使室内空间看起来明亮宽敞,配以金属和部分深色家具,使整个空间丰富且不单调。

客厅
第1张
第2张
第3张
餐厅
第1张
书房
第1张
第2张
第3张
门厅
第1张
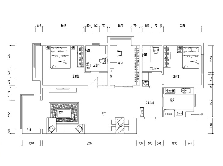
户型图
第1张
  • 案例详情

金地左岸-97平-现代风格-客厅1.jpg 金地左岸-97平-现代风格-客厅.jpg 金地左岸-97平-现代风格-客厅2.jpg

金地左岸87平2居室现代风格林凤装饰的客厅基调选择了浅灰色为主色调,加以白色的舒适度高的三人转角沙发,并配以白色矮榻,形成色彩的统一协调。电视背景墙没有采用传统的铺贴壁纸方式,而是采用了木材上墙并在其中融合入金属条,是客厅的一大亮点。

金地左岸-97平-现代风格-餐厅.jpg

金地左岸87平2居室现代风格林凤装饰的餐厅

金地左岸-97平-现代风格-书房.jpg 金地左岸-97平-现代风格-书房1.jpg 金地左岸-97平-现代风格-书房2.jpg

金地左岸87平2居室现代风格林凤装饰的书房

金地左岸-97平-现代风格-玄关.jpg

金地左岸87平2居室现代风格林凤装饰的业主对于鞋柜特别在意存在感,有造型感的鞋柜是最完美的选择,强化柜子的存在。并对鞋柜进行装饰形成一个端景,既有实用性又有美观性。

金地左岸-97平-现代风格-户型图.jpg

案例设计师

林凤装饰设计师

设计师:林凤装饰设计师

从业时间:7年

设计理念:为生活着色

预约设计师

算算你家装修多少钱

报名即享丰厚赠品,享半价装修

免费报价
咨询热线:400-656-9909
20190221103704574636.jpg

精品设计案例

20180612134930523248.jpg 服务号二维码.jpg