立即预约 立即预约
免费定制整装家居

免费定制整装家居

一站置家 全程无忧 一省到底
hide.png

当前位置: 首页 > 装修案例效果图 > 龙泽国际花园

龙泽国际花园 214平 美式风格效果图

收藏
案例风格 美式 案例户型 四居 案例面积 214平米
楼盘名称 龙泽国际花园 设计师 林凤设计师 案例类型 改善性住宅

设计理念:龙泽国际花园214平4居室林凤装饰以简美风格为主,由于是一楼带地下室,所以我们的案例理念就是合理利用空间时尚,温馨,背景墙要简洁,整体不失典雅,端庄。

客厅
第1张
第2张
第3张
第4张
第5张
卧室
第1张
卫生间
第1张
休闲区
第1张
门厅
第1张
过廊
第1张
第2张
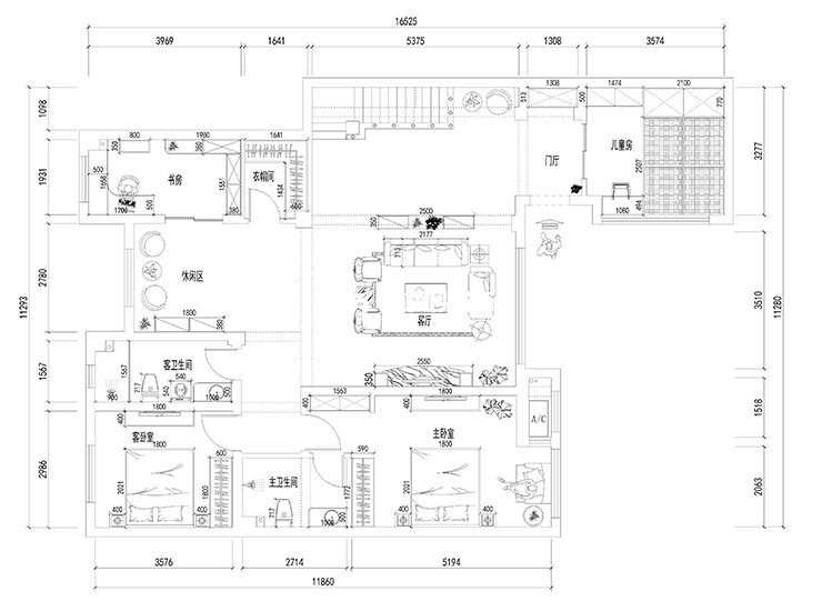
户型图
第1张
  • 案例详情

龙泽国际花园-214平-简美风格-客厅1.jpg 龙泽国际花园-214平-简美风格-客厅2.jpg 龙泽国际花园-214平-简美风格-客厅3.jpg 龙泽国际花园-214平-简美风格-地下室1.jpg 龙泽国际花园-214平-简美风格-地下室2.jpg

龙泽国际花园214平4居室简美风格林凤装饰的客厅与过廊较大,天花上我们选择多线段,多层次的手法。利用直线石膏线条的搭配来体现刚柔并进的手法融合美式主义装修风格。

龙泽国际花园-214平-简美风格-卧室.jpg

龙泽国际花园214平4居室简美风格林凤装饰的卧室的设计安排合理,美式靠背大床头,与美式拼花单色壁纸,与窗帘小拼花色调非常完美的拼搭在一起。

龙泽国际花园-214平-简美风格-卫生间.jpg

龙泽国际花园214平4居室简美风格林凤装饰的卫生间为干湿分离格局,里侧将座便花洒的摆放空间,手盆只有摆放到外侧,虽然空间有限,但是在这里我们配上双色瓷砖铺贴,非常巧妙的搭配到是给空间增添不少创意色彩。

龙泽国际花园-214平-简美风格-会客厅.jpg

龙泽国际花园214平4居室简美风格林凤装饰的会客厅为业主能够轻松接待亲属朋友来访时互不干扰,年轻人在一起在一个空间天南海北侃侃而谈。

龙泽国际花园-214平-简美风格-门厅1.jpg

龙泽国际花园214平4居室简美风格林凤装饰的玄关从门口一进来,便能感受到门厅的舒适感,门口对面就能安放一组组合壁柜,上边可以挂衣物,中间可倒手放置小件物品,下边可放鞋子,雨伞雨具等。

龙泽国际花园-214平-简美风格-过廊1.jpg 龙泽国际花园-214平-简美风格-过廊2.jpg

龙泽国际花园214平4居室简美风格林凤装饰的过廊处正是楼梯口处,楼梯扶手正是房主非常喜欢的颜色与搭配。

龙泽国际花园-214平-简美风格-平面图.jpg

案例设计师

林凤设计师

设计师:林凤设计师

从业时间:13年

设计理念:一切随心,用心去感悟空间

预约设计师

算算你家装修多少钱

报名即享丰厚赠品,享半价装修

免费报价
咨询热线:400-656-9909
20190221103704574636.jpg

精品设计案例

20180612134930523248.jpg 服务号二维码.jpg