立即预约 立即预约
免费定制整装家居

免费定制整装家居

一站置家 全程无忧 一省到底
hide.png

当前位置: 首页 > 装修案例效果图 > 中海和平之门

中海和平之门 113平 现代简约风格效果图

收藏
案例风格 现代简约 案例户型 三居 案例面积 113平米
楼盘名称 中海和平之门 设计师 林凤装饰 案例类型 改善性住宅

设计理念:本案以现代、简洁、自然的表现形式突出居室的温馨感觉;

客厅
第1张
第2张
第3张
餐厅
第1张
第2张
卧室
第1张
卫生间
第1张
厨房
第1张
过廊
第1张
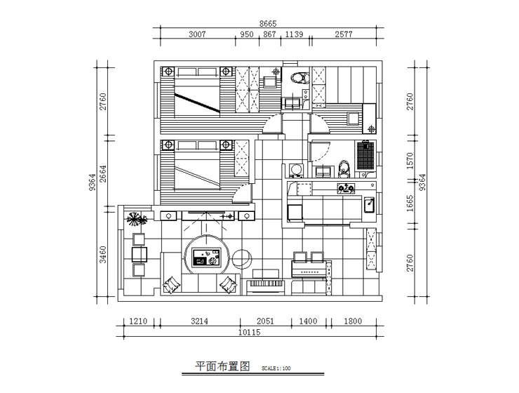
户型图
第1张
  • 案例详情

和平之门-113平-现代风格-客厅.jpg 和平之门-113平-现代风格-客厅1.jpg 和平之门-113平-现代风格客厅2.jpg

背景墙采用了简单的清新壁纸墙面与简约的直线吊顶充分结合展现方案的简洁明快。黄色沙发和带颜色的靠垫与沙发后的米灰色墙面对比显得更时尚、更清新。

和平之门-113平-现代风格-餐厅.jpg 和平之门-113平-现代风格-餐厅1.jpg

本案的餐厅是比较现代的卡座形式、这样就更有效的把省出来的空间放置一架钢琴、这样整体空间丰富、更协调。

和平之门-113平-现代风格-卧室.jpg

本案的主卧室设计上追求更实用,棚面采用简洁的石膏线收边设计,主墙面是用浅咖啡的颜色与床饰品的黄色的搭配设计与客厅的整体颜色对接使得整个家居空间更温馨。

和平之门-113平-现代风格-卫生间.jpg

本案的卫生间是以简洁的颜色搭配白色的小条砖、干湿分离的设计把整个的空间运用更惟妙惟肖。

和平之门-113平-现代风格-厨房.jpg

厨房整体设计思路还是遵照人体工程原则、操作流程原则、采光通风原则。墙地面砖是白色瓷砖和深灰色木纹橱柜搭配更显厨房干净、整洁。

和平之门-113平-现代风格-走廊.jpg 和平之门-113平-现代风格-平面图.jpg

案例设计师

林凤装饰

设计师:林凤装饰

从业时间:15年

设计理念:用心感受生活,用设计完善空间,让设计与生活空间完美结合。

预约设计师

算算你家装修多少钱

报名即享丰厚赠品,享半价装修

免费报价
咨询热线:400-656-9909
20190221103704574636.jpg

精品设计案例

20180612134930523248.jpg 服务号二维码.jpg